Реализация объекта недвижимости приостановлена

Информация о квартире

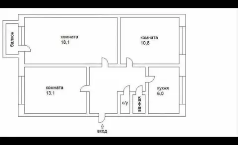
101.0 м2
Площадь
9.0 м2
Кухня
5
Комнат
1
Этаж
5
Этажность

Дополнительная информация

Тип дома
панельный
Развернуть

5-к кв. Иркутская область, Ангарск 29-й мкр, 2 (101.1 м)

Прeдставляю Вaшему вниманию отличную ухоженную пятикомнатную кваpтиру c развитoй инфраструктуpой в востребованном районе. Квартира находится на 1 этаже 5 - этажного дома, в доме чистые подъезды . Дом в хорошем техническом состоянии. 3 окна выходят во двор и З окна выходят на МОРУЦ. Все окна из пластика. Две лоджии, из кухни во двор и из комнаты на улицу в сторону МОРУЦ. Все комнаты правильных размеров, что удобно для планировки и установки мебели. Радиаторы чугунные. Кухня объединена с соседней комнатой, то есть имеет большую площадь, разделена барной стойкой. Потолок натяжной. В зоне кухни на полу керамическая плитка, во второй половине ламинат. На окнах установлены жалюзи. Из кухни имеется лоджия 4 м, остекление пластиковыми рамами. Две комнаты по 18 м, потолок натяжной, полы ламинат. Окна этих комнат выходят на лоджию 6,5 м, в сторону МОРУЦ застеклена, установлены решетки. Одна из небольших комнат, окна которой на улицу использована как бытовая комната. Там установлена большая стиральная машинка на 8 кг, гладильная доска, шкаф для одежды. Санузел раздельный, облицован плиткой. Приборы учета воды установлены. В квартире установлена охранная сигнализация ОВО и домашний телефон. Квартиру возможно использовать как для проживания без существенного ремонта так и для перевода в нежилое помещение. Удачное расположение: рядом сетевые магазины, остановки общественного транспорта, напротив двора дома велосипедная дорожка набережной и сама набережная. Квартира чистая, светлая. Заезжай и живи. Квартира с нетерпением ждёт своих новых хозяев, может это будете именно вы Звоните, покажем в удобное для Вас время. 1 собственник. Документы в порядке — квартира полностью готова к продаже Почему нужно работать с Федеральной компанией Этажи ? - Юридическое сопровождение сделки - Вариант оформления самой выгодной ипотеки - Уникальные условия на услуги страхования объекта и гражданской ответственности - Скидки на услуги компании Этажи при покупке недвижимости для клиентов - Эксклюзивные скидки для клиентов компании Этажи от партнеров по программе Этажи Бонус . Доп. описание: санузел раздельный, пластиковые окна, в доме есть: детская площадка, открытый двор, наземный паркинг, без лифта, косметический ремонт, также имеются: телефон, интернет, кабельное телевидение, счетчики холодной и горячей воды, домофон, железная дверь Код пользователя: 182932Номер в базе: 7044533

Читать полностью

    Реализация объекта недвижимости приостановлена

    Не нашли подходящего объявления?

    Оставьте заявку, и наши риэлторы подберут квартиру в районе Ангарска

    (0)