Реализация объекта недвижимости приостановлена

Информация о квартире

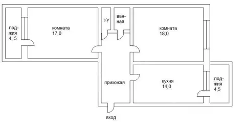
44.0 м2
Площадь
29.0 м2
Жилая
6.0 м2
Кухня
2
Комнаты
2
Этаж
4
Этажность

Дополнительная информация

Тип дома
панельный
Развернуть

2-к кв. Иркутская область, Ангарск 188-й кв-л, 13 (44.8 м)

Предлагаем вашему вниманию светлую и просторную 2-комнатную квартиру, расположенную в самом сердце города. Квартира идеально подходит как для проживания. Удобная планировка: большая гостиная, уютная спальня, кухня. Современный ремонт: выполнен в светлых тонах, установлены качественные материалы. В квартире остаются вся необходимая мебель и техника (холодильник, стиральная машина, микроволновая печь). Развитая инфраструктура: в шаговой доступности ТЦ Фестиваль, магазин Пятерочка и Командор, кафе Вкусно и точка, 2 детских сада и остановки общественного транспорта. Тихий и спокойный двор: идеальное место для семей с детьми. Почему нужно работать с Федеральной компанией Этажи ? - Юридическое сопровождение сделки - Вариант оформления самой выгодной ипотеки - Уникальные условия на услуги страхования объекта и гражданской ответственности - Скидки на услуги компании Этажи при покупке недвижимости для клиентов - Эксклюзивные скидки для клиентов компании Этажи от партнеров по программе Этажи Бонус . Доп. описание: санузел совмещенный, пластиковые окна, в доме есть: детская площадка, открытый двор, наземный паркинг, без лифта, косметический ремонт, также имеются: кабельное телевидение, счетчики холодной и горячей воды, домофон, железная дверь, кухонный гарнитур Код пользователя:Номер в базе: 7045751

Читать полностью

    Реализация объекта недвижимости приостановлена

    Не нашли подходящего объявления?

    Оставьте заявку, и наши риэлторы подберут квартиру в районе Ангарска

    (0)