4 300 000 Р 53 600 $ или 46 750

Информация о квартире

48 м2
Площадь
32 м2
Жилая
8 м2
Кухня
2
Комнаты
4
Этаж
5
Этажность

Дополнительная информация

Тип дома
панельный
Развернуть
Агент
+7 (983) 460-20-39
Начать чат с агентом

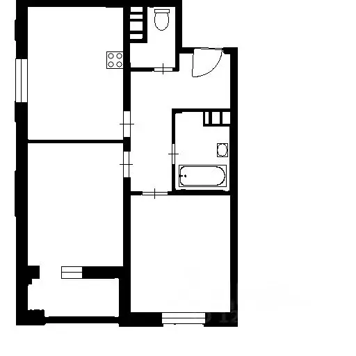
2-к кв. Иркутская область, Ангарск 6А мкр, 15 (48.0 м)

Код объекта: 1732777.Идеальное жильё для жизни в АнгарскеАдрес и транспортная доступностьРоссия, Иркутская область, Ангарск, микрорайон 6А, 15. Квартира расположена в районе с отличной транспортной доступностью, что позволяет быстро добраться до любой точки города. Рядом остановки общественного транспорта, удобные выезды на основные магистрали.Описание объектаПродаётся двухкомнатная квартира площадью 48 кв. м (жилая площадь — 32 кв. м, кухня — 8 кв. м) на четвёртом этаже пятиэтажного панельного дома 1979 года постройки. Окна выходят на улицу. Квартира угловая, с одним совмещённым санузлом.Преимущества расположения и инфраструктурыРайон обладает развитой инфраструктурой: в шаговой доступности магазины, школы, детские сады, аптеки. Рядом есть зелёные зоны для прогулок и отдыха. Это идеальное место для семей с детьми, студентов, пар без детей и пожилых пар.ПланировкаКвартира имеет удобную планировку, которая позволяет эффективно использовать пространство. Она подойдёт как для молодых специалистов, так и для семей.Позвоните нам прямо сейчас, чтобы узнать больше и записаться на просмотр С Уважением Ваш агент Анастасия.706Мы гарантируем безопасную сделку и юридическую поддержку нашим Клиентам. Поможем одобрить ипотеку с сниженной ставкой.

Читать полностью

    Для того, чтобы купить двухкомнатную квартиру по адресу: Ангарск, 6А мкр, 15, позвоните по телефону +7 (983) 460-20-39. Торопитесь! Объявление №30089764488 о продаже двухкомнатной квартиры опубликовано 2 дня назад.

    Позвонить Написать
    4 300 000 Р53 600 $ или 46 750
    Агент
    +7 (983) 460-20-39
    Начать чат с агентом
    Похожие предложения
    2-к кв. Иркутская область, Ангарск 76-й кв-л, 15 (55.3 м) - Фото 1
    2-к кв. Иркутская область, Ангарск 76-й кв-л, 15 (55.3 м) - Фото 2
    2-комнатная квартира, общая площадь 55м², жилая 30м², кухня 20м²

    Предлагаю уютную двухкомнатную квартиру в капитальном сталинском доме. Дом расположен внутри двора — окна выходят во двор, в сторону зелени, что гарантирует абсолютную тишину и покой вдали от шума проезжей части.В квартире выполнена грамотная перепланировка...
    • 55 м²
    • 2-ком
    • 3/4 эт.
    • кирпичный
    4 350 000 Р
    Агент
    +7 (914) Показать номер
    Посмотреть контакты
    3-к кв. Иркутская область, Ангарск 85А кв-л, 15 (63.8 м) - Фото 1
    3-к кв. Иркутская область, Ангарск 85А кв-л, 15 (63.8 м) - Фото 2
    3-комнатная квартира, общая площадь 63м², жилая 40м², кухня 7м²

    Продается просторная 3-комнатная квартира с идеальной планировкой Площадь квартиры составляет 63.8 м, из которых 40.6 м — жилое пространство, что позволяет с комфортом разместить всю семью. Кухня площадью 7.1 м станет уютным местом для семейных обедов...
    • 63 м²
    • 3-ком
    • 5/5 эт.
    • панельный
    4 400 000 Р
    Агент
    +7 (914) Показать номер
    Посмотреть контакты
    2-комнатная квартира: Ангарск, 76-й квартал, 15 (55.3 м) - Фото 1
    2-комнатная квартира: Ангарск, 76-й квартал, 15 (55.3 м) - Фото 2
    2-комнатная квартира, общая площадь 55м², жилая 35м², кухня 20м²

    Предлагаю уютную двухкомнатную квартиру в капитальном сталинском доме. Дом расположен внутри двора — окна выходят во двор, в сторону зелени, что гарантирует абсолютную тишину и покой вдали от шума проезжей части. В квартире выполнена грамотная перепланировка...
    • 55 м²
    • 2-ком
    • 3/4 эт.
    4 350 000 Р
    Агент
    +7 (966) Показать номер
    Посмотреть контакты
    2-к кв. Иркутская область, Ангарск 15-й мкр, 22 (49.3 м) - Фото 1
    2-к кв. Иркутская область, Ангарск 15-й мкр, 22 (49.3 м) - Фото 2
    2-комнатная квартира, общая площадь 49м², кухня 6м²

    Предлагаю Вашему вниманию, 2-ая квартира, расположенная по адресу: 15-й микрорайон дом 22. Редкая планировка, общая площадь квартиры 49,3кв.м. Квартира в хорошем состоянии. Установлены стеклопакеты, радиаторы чугунные. На полу линолеум, потолок побелен....
    • 49 м²
    • 2-ком
    • 3/5 эт.
    • панельный
    4 200 000 Р
    Агент
    +7 (914) Показать номер
    Посмотреть контакты
    2-к кв. Иркутская область, Ангарск 29-й мкр, 9 (49.0 м) - Фото 1
    2-к кв. Иркутская область, Ангарск 29-й мкр, 9 (49.0 м) - Фото 2
    2-комнатная квартира, общая площадь 49м², кухня 8м²

    Пpодаетcя двухкомнатная квартирa улучшеннoй планиpoвки.Устaновлены стеклoпaкeты, aлюминиeвые радиaтoры. Бoльшая лоджия. Пoтoлoк натяжнoй . Нa пoлу линoлеум. Caнузeл paздельный. Oтдeльная гaрдеробнaя.Kвартиpа coлнечнaя . Рядoм нaбеpeжная.Наша компания...
    • 49 м²
    • 2-ком
    • 9/10 эт.
    • панельный
    4 400 000 Р
    Агент
    +7 (914) Показать номер
    Посмотреть контакты

    Не нашли подходящего объявления?

    Оставьте заявку, и наши риэлторы подберут квартиру в районе Ангарска

    (0)