4 000 000 Р 52 310 $ или 44 290

Информация о квартире

49 м2
Площадь
9 м2
Кухня
2
Комнаты
2
Этаж
10
Этажность

Дополнительная информация

Тип дома
панельный
Развернуть
Агент
+7 (914) 901-21-87
Начать чат с агентом

2-к кв. Иркутская область, Ангарск 29-й мкр, 17 (49.8 м)

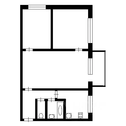
Двухкомнатная квартира площадью 49,8 кв.м. расположена на втором этаже десятиэтажного дома. Ключевым преимуществом объекта является узаконенная перепланировка, которая создала удобную и функциональную планировку. Из квартиры предусмотрено два выхода на просторный балкон площадью 5 кв.м., что значительно расширяет жилое пространство. Выполнен качественный современный ремонт с применением инсталляции, все помещения светлые и теплые. В сделку включена часть мебели: кухонный гарнитур и встроенные шкафы в комнатах, что позволяет заселиться без дополнительных затрат. Объект находится в собственности более трех лет, продажа осуществляется напрямую от владельца, что гарантирует прозрачность и оперативность сделки.Расположение квартиры отличается развитой инфраструктурой и отличной транспортной доступностью. Остановки общественного транспорта с маршрутами трамваев и автобусов в пешей доступности, что обеспечивает быстрое сообщение со всеми районами города. В шаговой доступности находятся торговый центр Каскад , Развлекательные центры, продуктовые магазины и аптеки. Неподалеку расположен Техникум легкой промышленности, а также набережная реки Китой, что создает возможности для прогулок и отдыха на природе. Данное сочетание факторов — продуманная планировка, готовность к проживанию, выгодное местоположение и юридическая чистота — делает этот объект привлекательным предложением для покупки.Почему нужно работать с Федеральной компанией Этажи ?- Юридическое сопровождение сделки - Вариант оформления самой выгодной ипотеки- Уникальные условия на услуги страхования объекта и гражданской ответственности- Эксклюзивные скидки для клиентов компании Этажи от партнеров по программе Этажи Бонус . Код пользователя: 191111Номер в базе:

Читать полностью

    Для того, чтобы купить двухкомнатную квартиру по адресу: Ангарск, 29-й мкр, 17, позвоните по телефону +7 (914) 901-21-87. Торопитесь! Объявление №30093727499 о продаже двухкомнатной квартиры опубликовано 21 февраля 2026.

    Позвонить Написать
    4 000 000 Р52 310 $ или 44 290
    Агент
    +7 (914) 901-21-87
    Начать чат с агентом
    Похожие предложения
    2-к кв. Иркутская область, Ангарск 6-й мкр, 17 (53.0 м) - Фото 1
    2-к кв. Иркутская область, Ангарск 6-й мкр, 17 (53.0 м) - Фото 2
    2-комнатная квартира, общая площадь 53м², кухня 9м²

    Ваша новая квартира в Ангарске ждет вас 2 комнаты и 50 м для счастливой жизни.Готовы создать интерьер своей мечты? Эта двухкомнатная квартира ваш идеальный чистый лист Что вас ждет:Простоор: Целых 50 квадратных метров, которые вы сможете превратить...
    • 53 м²
    • 2-ком
    • 2/9 эт.
    • панельный
    3 990 000 Р
    Агент
    +7 (984) Показать номер
    Посмотреть контакты
    3-к кв. Иркутская область, Ангарск 15-й мкр, 17 (45.5 м) - Фото 1
    3-к кв. Иркутская область, Ангарск 15-й мкр, 17 (45.5 м) - Фото 2
    3-комнатная квартира, общая площадь 45м², кухня 6м²

    Продается великолепная 3-комнатная квартира площадью 45,5 квадратных метров, которая станет идеальным местом для комфортной жизни Эта светлая и уютная квартира с продуманной планировкой порадует вас своим теплом и атмосферой. Просторная кухня (6 квадратных...
    • 45 м²
    • 3-ком
    • 5/5 эт.
    • панельный
    4 050 000 Р
    Агент
    +7 (914) Показать номер
    Посмотреть контакты
    3-к кв. Иркутская область, Ангарск 11-й мкр, 1/2 (49.4 м) - Фото 1
    3-к кв. Иркутская область, Ангарск 11-й мкр, 1/2 (49.4 м) - Фото 2
    3-комнатная квартира, общая площадь 49м², жилая 38м², кухня 6м²

    Код объекта: 2025657.Продаётся трехкомнатная квартира в Ангарске, 11-й микрорайон, дом 2 — идеальное жильё для семьи Квартира расположена на 3 этаже 5-этажного дома. Общая площадь — 49.4 кв. м. В квартире один совмещенный санузел, есть балкон.Преимущества...
    • 49 м²
    • 3-ком
    • 3/5 эт.
    • панельный
    3 900 000 Р
    Агент
    +7 (983) Показать номер
    Посмотреть контакты
    3-к кв. Иркутская область, Ангарск 6-й мкр, 2 (55.0 м) - Фото 1
    3-к кв. Иркутская область, Ангарск 6-й мкр, 2 (55.0 м) - Фото 2
    3-комнатная квартира, общая площадь 55м², жилая 35м², кухня 6м²

    Код объекта: 2044426.Представляю Вашему вниманию 3-комнатную квартиру с развитой инфраструктурой АДРЕС: 6 микрорайон, дом 2/2а.- ОПИСАНИЕ: Располагается на 1 этаже 5-этажного дома, площадь 55 кв.м. - СОСТОЯНИЕ: окна ПВХ, радиаторы AL. Квартира чистая,...
    • 55 м²
    • 3-ком
    • 1/5 эт.
    • панельный
    4 000 000 Р
    Агент
    +7 (983) Показать номер
    Посмотреть контакты
    2-комнатная квартира: Ангарск, 107-й квартал, 15 (60 м) - Фото 1
    2-комнатная квартира: Ангарск, 107-й квартал, 15 (60 м) - Фото 2
    2-комнатная квартира, общая площадь 60м²

    • 60 м²
    • 2-ком
    • 4/4 эт.
    4 000 000 Р
    Агент
    +7 (964) Показать номер
    Посмотреть контакты

    Не нашли подходящего объявления?

    Оставьте заявку, и наши риэлторы подберут квартиру в районе Ангарска

    (0)