4 250 000 Р 52 480 $ или 44 930

Информация об помещении

цоколь
Этаж

Состояние и оснащение

Количество этажей
3
Развернуть
Агент
+7 (914) 890-13-86
Начать чат с агентом

Помещение свободного назначения в Иркутская область, Ангарск 30-й мкр, ...

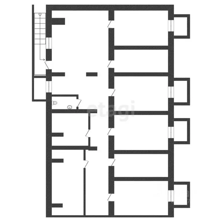
Предлагаю Вашему вниманию коммерческое помещение, расположенное в одном из самых ликвидных районов нашего города, а именно, в цокольном этаже дома 2, микрорайон 30.Высокий трафик привлечет бесперебойны поток клиентов в ваш бизнес.В помещении сделан ремонт, соответствующий деятельности его собственника на данный момент. В связи с тем, что ранее в этом помещении был общепит, была установлена вытяжка. В данный момент, вытяжка была демонтирована, в связи с ненадобностью, но комплектующие будут переданы новому собственнику.Обращаясь к размещенному поэтажному плану помещения, вы увидите, что планировка кабинетного типа, при этом есть комнаты достаточно большого размера, что является оптимальным решением при любом виде бизнеса.В каждую комнату помещения попадает естественное освещение за счет пластиковых окон, защищенных металлическими решетками. По всему помещению установлен новый потолок, заменено освещение.Есть просторный санузел.Дополнительным преимуществом будет наличие свободных паковочных мест для ваших сотрудников и клиентов.Свободная продажа, показ в удобное для вас время. Возможна покупка в ипотеку._________________________________Помогаем с одобрением ипотеки с пониженными процентными ставками. Предлагаю воспользоваться ипотекой с отсрочкой платежа на 6 месяцев. Код пользователя: 122304Номер в базе: 6915242

Читать полностью
    Позвонить Написать
    4 250 000 Р52 480 $ или 44 930
    Агент
    +7 (914) 890-13-86
    Начать чат с агентом
    Похожие предложения
    Помещение свободного назначения в Иркутская область, Иркутск ул. ... - Фото 1
    Помещение свободного назначения в Иркутская область, Иркутск ул. ... - Фото 2
    Предлагаются к продаже два прибыльных коммерческих помещения, расположенных в оживленном районе на первой линии улицы Бородина. Общая площадь составляет 53 квадратных метра, но объекты можно приобрести как вместе, так и по отдельности.Первый объект: 38,7...
    • 1/5 эт.
    4 200 000 Р
    Агент
    +7 (984) Показать номер
    Посмотреть контакты
    Помещение свободного назначения в Иркутская область, Иркутск ул. ... - Фото 1
    Помещение свободного назначения в Иркутская область, Иркутск ул. ... - Фото 2
    Уважаемые покупатели В продаже помещение свободного назначения общая площадь 102,8 кв. м. (по документам жилое помещение). Возможен обмен - на квартиру, автомобиль, спецтехнику, майнинговое оборудование.Расположено на первом этаже 2-х. этажного жилого...
    • 1/2 эт.
    4 200 000 Р
    Агент
    +7 (984) Показать номер
    Посмотреть контакты
    Помещение свободного назначения в Иркутская область, Иркутск ул. ... - Фото 1
    Помещение свободного назначения в Иркутская область, Иркутск ул. ... - Фото 2
    Предлагаются к продаже два прибыльных коммерческих помещения, расположенных в оживленном районе на первой линии улицы Бородина. Общая площадь составляет 53 квадратных метра, но объекты можно приобрести как вместе, так и по отдельности.Первый объект: 38,7...
    • 1/5 эт.
    4 200 000 Р
    Агент
    +7 (984) Показать номер
    Посмотреть контакты
    Помещение свободного назначения в Иркутская область, Иркутск ... - Фото 1
    Помещение свободного назначения в Иркутская область, Иркутск ... - Фото 2
    Уважаемые инвесторы В продаже привлекательная инвестиционная возможность: универсальное помещение 50 кв.м., расположенное в Октябрьском р-не. По адресу Байкальская 234 в/1Объект уже приносит стабильный пассивный доход благодаря наличию действующих арендаторов...
    • 1/9 эт.
    4 200 000 Р
    Агент
    +7 (984) Показать номер
    Посмотреть контакты
    Помещение свободного назначения в Иркутская область, Иркутск ул. ... - Фото 1
    Помещение свободного назначения в Иркутская область, Иркутск ул. ... - Фото 2
    Уважаемые покупатели В продаже помещение свободного назначения общая площадь 102,8 кв. м. (по документам жилое помещение). Возможен обмен - на квартиру, автомобиль, спецтехнику, майнинговое оборудование.Расположено на первом этаже 2-х. этажного жилого...
    • 1/2 эт.
    4 200 000 Р
    Агент
    +7 (984) Показать номер
    Посмотреть контакты

    Не нашли подходящего объявления?

    Оставьте заявку, и наши риэлторы подберут псн в районе Ангарска

    (0)