650 000 Р 8 310 $ или 7 060

Информация об помещении

2
Этаж

Состояние и оснащение

Количество этажей
2
Развернуть
Агент
+7 (983) 240-44-89
Начать чат с агентом

Помещение свободного назначения в Иркутская область, Ангарск ул. ...

Сдается производственное помещение:1 этаж- цех 750 кв.м, душевые и раздевалка 100 кв.м., кроме этого на этаже расположены -сан.узел, комната отдыха, токарная и слесарная мастерская, комната видеонаблюдения. В цехе есть кран-балка 10 тонн, вальцы, гильотина и другое оборудование.На 2 этаже расположены 2 сан.узла, кухня и несколько офисных помещений от 12 м.кв.Въезд на территорию здания за Управлением Пенсионного Фонда. Общая площадь земельного участка 4305 кв.м.

Читать полностью
    Позвонить Написать
    650 000 Р8 310 $ или 7 060
    Агент
    +7 (983) 240-44-89
    Начать чат с агентом
    Похожие предложения
    Помещение свободного назначения в Москва ул. Серпуховский Вал, 17 (218 ... - Фото 1
    Помещение свободного назначения в Москва ул. Серпуховский Вал, 17 (218 ... - Фото 2
    ==ЛОТ 223766 == ОТ СОБСТВЕННИКА, БЕЗ КОМИССИИ. Сдаем помещения кабинетной планировки справа и подвал.То, что кабинетной планировки - ранее была медкомиссия и бюро переводов. Планировку можно менять (например объединить помещения). Подойдёт под различные...
    • 1/9 эт.
    654 000 Р
    Агент
    +7 (923) Показать номер
    Посмотреть контакты
    Помещение свободного назначения в Коми, Сыктывкар ул. Куратова, 72 ... - Фото 1
    Помещение свободного назначения в Коми, Сыктывкар ул. Куратова, 72 ... - Фото 2
    Предлагаем в долгосрочную аренду нежилые помещения, расположенные в многоквартирном жилом доме премиум-класса Олимп по улице Куратова, дом 72. Генподрядная организация была представлена черногорскими и сербскими строителями, имеющими большой опыт профессиональной...
    • 1/18 эт.
    660 000 Р
    Агент
    +7 (912) Показать номер
    Посмотреть контакты
    Помещение свободного назначения в Москва ул. Вильгельма Пика, 1 (110 ... - Фото 1
    Помещение свободного назначения в Москва ул. Вильгельма Пика, 1 (110 ... - Фото 2
    ID 62735 Предлагаю в аренду ПСН площадью 110 масположенное на первом этаже стилобатной части жилого дома входящего в состав ЖК Режиссер. Помещение с отдельным входом, зальной планировки, с витринным остеклением. Высота потолков 6 м. В настоящее время...
    • 1/28 эт.
    658 800 Р
    Агент
    +7 (980) Показать номер
    Посмотреть контакты
    Помещение свободного назначения в Краснодарский край, Краснодар ... - Фото 1
    Помещение свободного назначения в Краснодарский край, Краснодар ... - Фото 2
    Сдаются коммерческие помещения Свободного назначения по улицe Воронежская , напротив ЖК Гарантия на обрывной.Стоимость указана за один метр квадратный Характеристики: • Здание 3 этажное, сдается 2 и 3 этажи • Площадь каждого этажа 320 м • На каждом этаже:...
    • -1/2 эт.
    650 000 Р
    Агент
    +7 (988) Показать номер
    Посмотреть контакты
    Помещение свободного назначения в Удмуртия, Ижевск ул. Малая Луговая, ... - Фото 1
    Помещение свободного назначения в Удмуртия, Ижевск ул. Малая Луговая, ... - Фото 2
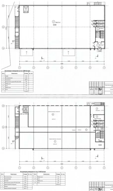
    Сдается в аренду отдельно стоящее здание, новый торгово-офисный центр на Маяковке, фактический адрес: улица малая луговая. Своя асфальтированная парковка. Общая квадратура двух этажей 1282 кв. м. Первый этаж 2 санузла, один зал общей площадью 597 кв....
    • 1/2 эт.
    646 000 Р
    Агент
    +7 (982) Показать номер
    Посмотреть контакты

    Не нашли подходящего объявления?

    Оставьте заявку, и наши риэлторы подберут псн в районе Ангарска

    (0)