Россия, Иркутская область, Братск, Приморская улица, 49А

Реализация объекта недвижимости приостановлена

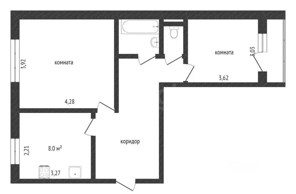
Информация о квартире

51.0 м2
Площадь
9.0 м2
Кухня
2
Комнаты
6
Этаж
9
Этажность

Дополнительная информация

Тип дома
панельный
Развернуть

2-к кв. Иркутская область, Братск Энергетик жилрайон, ул. Приморская, ...

Давно искали 2-комнатную квартиру ближе к школе?АН Бизнес Риэлти предлагает светлую и уютную 2-комнатнаую квартиру на шестом этаже девятиэтажного дома по адресу: Приморская 49А Дом расположен в прекрасном Энергетик — здесь всё, что нужно для комфортной жизни, находится в шаговой доступности: школа 34, детские сады, детская больница, магазины и прочая инфраструктура.В квартире каждая деталь продуманна для вашего комфорта и уюта.-Современная новая планировка - комнаты изолированные, удобное расположение кухни и санузла;- Заменены все окна на современные, обеспечивающие отличную звуко- и теплоизоляцию;- Установлены новые радиаторы отопления - в квартире всегда комфортная температура- Застеклённый балкон и лоджия станут вашим любимым местом для утреннего кофе или вечернего отдыха с видом на город.-Раздельный санузел - комфорт для всей семьи;Особый бонус — вся мебель и техника, которая есть в квартире, остаётся новому владельцу, чтобы вы могли сразу заехать и наслаждаться комфортом без лишних хлопот.Эта квартира — идеальное сочетание удобного расположения, продуманной планировки и готовности к проживанию, которая подарит вам тепло и вдохновение каждый день. Не упустите шанс стать обладателем этого замечательного жилья — звоните и записывайтесь на просмотр Помогаем в оформлении ипотеки БЕСПЛАТНО, заявку подать можно прямо у нас в офисе в несколько банков одновременно, подберем наиболее выгодную процентную ставку, поможем сэкономить на расходах.А также работаем с любыми видами сертификатов.

Читать полностью

    Реализация объекта недвижимости приостановлена

    Не нашли подходящего объявления?

    Оставьте заявку, и наши риэлторы подберут квартиру в районе Братска

    (0)