Россия, Иркутская область, Братск, Солнечная улица, 8
3 320 000 Р 43 630 $ или 37 430

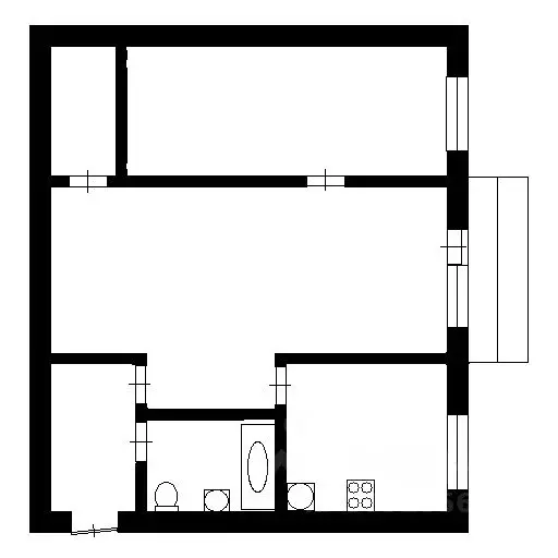
Информация о квартире

36 м2
Площадь
19 м2
Жилая
7 м2
Кухня
1
Комната
8
Этаж
9
Этажность

Дополнительная информация

Тип дома
панельный
Развернуть
Агент
+7 (983) 241-20-76
Начать чат с агентом

1-к кв. Иркутская область, Братск Энергетик жилрайон, ул. Солнечная, 8 ...

Прекрасное предложение для тех, кто ценит комфорт Планировка идеальная: кухня и жилая комната на разные стороны, кладовая - гардеробная, балкон из комнаты, лоджия - из кухни. Балкон на всю ширину комнаты. Комната больше стандартной, 19 кв.м. В квартире выполнен косметический ремонт, благодаря чему она готова к проживанию без дополнительных вложений.Замена окон, панели в санузле, в хорошем состоянии вся сантехника, замена двери в санузле, остекление балкона 4 м в длину, балкон полностью отделан изнутри под жилое состояние, теплый.Санузел совмещённый, что является удобством для многих и, кстати, санузел в этой планировке попросторнее, чем совмещенный санузел в обычном панельном доме.Обратите внимание, что жилая комната зонирована шторой, интересное решение, если отделить спальное место от гостевой части. Инфраструктура района развита, рядом расположены: парковая зона, спортивный комплекс, кинотеатр, музей, техникум, магазины, главная площадь Энергетика и др. Окна выходят на две стороны. Машина и дети под присмотром. При желании нашу квартиру можно превратить в 2-х комнатную, кухню и жилую комнату сделали объединенной кухней-гостиной и кухню тогда можно использовать как жилое помещение. 8й этаж в 9ти этажном доме. Зацените видовые характеристики Продажа без подбора варианта.И вишенка на торте остается новому владельцу кухня, плита, холодильник, микроволновка, стиральная машинка автомат, диван, стол белый, кондиционер Сдавайте квартиру, заселяйтесь сами все в ваших руках и деньгах

Читать полностью

    Для того, чтобы купить однокомнатную квартиру по адресу: Братск, Солнечная улица, 8, позвоните по телефону +7 (983) 241-20-76. Торопитесь! Объявление №30092012445 о продаже однокомнатной квартиры опубликовано 25 ноября 2025.

    Позвонить Написать
    3 320 000 Р43 630 $ или 37 430
    Агент
    +7 (983) 241-20-76
    Начать чат с агентом
    Похожие предложения
    3-к кв. Иркутская область, Братск ул. Промышленная, 3 (57.8 м) - Фото 1
    3-к кв. Иркутская область, Братск ул. Промышленная, 3 (57.8 м) - Фото 2
    3-комнатная квартира, общая площадь 57м², жилая 41м², кухня 6м²

    3-Х КОМНАТАНЯ КВАРТИРА ДЛЯ СЕМЬИ 57.8 кв.м., 2 комнаты изолированные, 1- проходная, раздельный санузел, балкон из зала. Квартира просторная, теплая и светлая, окна на две стороны. состояние самое обычное, квартира готова под ваши идеи и цвета. Отличное...
    • 57 м²
    • 3-ком
    • 5/5 эт.
    • кирпичный
    3 400 000 Р
    Агент
    +7 (914) Показать номер
    Посмотреть контакты
    2-к кв. Иркутская область, Братск ул. Обручева, 14А (44.0 м) - Фото 1
    2-к кв. Иркутская область, Братск ул. Обручева, 14А (44.0 м) - Фото 2
    2-комнатная квартира, общая площадь 44м², жилая 31м², кухня 6м²

    Ваша новая семейная история начинается здесь В Бизнес Риэлти мы знаем: мечты о собственном уютном уголке для вашей семьи это не просто желания, а план на будущее Устали от бесконечной арендной платы и чужих стен? Представьте: каждое утро ваш ребенок...
    • 44 м²
    • 2-ком
    • 5/5 эт.
    • панельный
    3 400 000 Р
    Агент
    +7 (984) Показать номер
    Посмотреть контакты
    2-комнатная квартира: Братск, улица Обручева, 14А (44 м) - Фото 1
    2-комнатная квартира: Братск, улица Обручева, 14А (44 м) - Фото 2
    2-комнатная квартира, общая площадь 44м², жилая 31м², кухня 6м²

    Ваша новая семейная история начинается здесь В Бизнес Риэлти мы знаем: мечты о собственном уютном уголке для вашей семьи – это не просто желания, а план на будущее Устали от бесконечной арендной платы и чужих стен? Представьте: каждое утро ваш ребенок...
    • 44 м²
    • 2-ком
    • 5/5 эт.
    3 400 000 Р
    Агент
    +7 (914) Показать номер
    Посмотреть контакты
    2-комнатная квартира: Братск, улица Обручева, 24 (44.3 м) - Фото 1
    2-комнатная квартира: Братск, улица Обручева, 24 (44.3 м) - Фото 2
    2-комнатная квартира, общая площадь 44м², жилая 30м², кухня 6м²

    Предлагаемая квартира станет отличным выбором для тех, кто ищет доступное жильё с развитой инфраструктурой. Она ждёт своих новых владельцев, готовых вдохнуть в неё жизнь с помощью свежего ремонта и индивидуального подхода.Возможность получить ключи в...
    • 44 м²
    • 2-ком
    • 5/5 эт.
    3 300 000 Р
    Агент
    +7 (964) Показать номер
    Посмотреть контакты
    2-к кв. Иркутская область, Братск ул. Енисейская, 60В (44.5 м) - Фото 1
    2-к кв. Иркутская область, Братск ул. Енисейская, 60В (44.5 м) - Фото 2
    2-комнатная квартира, общая площадь 44м², жилая 30м², кухня 6м²

    Ищите квартиру в развитом районе Гидростроителя?Основные преимущества района:- Чистый экологический район без запаха выбросов и шума от транспорта.- Большой зеленый двор и Бульвар Орлова рядом — отличные места для прогулок с детьми.- Инфраструктура включает...
    • 44 м²
    • 2-ком
    • 5/5 эт.
    • панельный
    3 350 000 Р
    Агент
    +7 (984) Показать номер
    Посмотреть контакты

    Не нашли подходящего объявления?

    Оставьте заявку, и наши риэлторы подберут квартиру в районе Братска

    (0)