8 551 400 Р 105 600 $ или 90 410

Информация о квартире

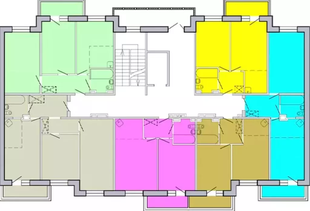
59 м2
Площадь
3
Комнаты
6
Этаж
9
Этажность
Развернуть
Агент
+7 (800) 333-03-93
Начать чат с агентом

3-к кв. Иркутская область, Иркутск Ново-Ленино мкр, Территория 1-й ...

Продаётся 3-комнатная квартира в сданном доме (1-й Ленинский квартал, 3 (Дом 3 Секция 4)), срок сдачи: IV-кв. 2022, общей площадью 60.1 кв.м., на 6 этаже. Первый Ленинский квартал - новый перспективный квартал, масштабы которого поражают. В нем предусмотрено все: расположение, уютный благоустроенный и, что немаловажно, безопасный двор с видеонаблюдением, умные домофоны, энергоэффективное освещение. Будет установлена парковка для электромобилей с возможностью подзарядки, стойки для велосипедов. В квартирах умные счетчики, окна с витражным остеклением. Все наше огромное пространство мы поделили на зоны. Акцент сделан на озеленении, ведь приятно отдохнуть на скамейках в окружении деревьев и кустарников. Для ребятишек предусмотрена современная детская спортивно-игровая площадка. Мы постарались подойти к этому вопросу нестандартно и установить здесь не классический детский городок, какими сегодня заполнены городские дворы, а нечто более инновационное. Чего будут стоить только качели в виде карусели с сидениями в форме прозрачных капсул Не забыли мы и о молодежи. Большая спортивная площадка, оборудованная всем необходимым снаряжением, позволит каждому выбрать тренажер по душе, а точнее по силам. А еще на всех площадках предусмотрена установка малых архитектурных форм. Ленинский округ - один из лучших районов Иркутска. За последние 10 лет здесь построены восемь детских садов, плавательный бассейн Спартак , современная школа 69 на 1250 мест, строится поликлиника и физкультурно-оздоровительный центр, завершены проекты трех пристроев к действующим школам, проектируется еще одно образовательное учреждение на 1350 мест. В планах и возведение крытого футбольного манежа.В непосредственной близости от нашего квартала находятся три школы, три детских сада. Есть также и частные дошкольные учреждения. И мы не говорим уже о наличие торговых объектов, индустрии красоты, служб бытовых услуг. Их количества вам будет достаточно, чтобы чувствовать себя абсолютно счастливым человеком. Конечно, мы не забываем о здоровье. 10-15 минут прогулочным шагом, и вы окажетесь на территории медицинского учреждения. Здесь находится филиал взрослой поликлиники и детская поликлиника 8. Сразу за медицинским объектом -- роща Молодежная , где всегда можно насладиться чистым свежим воздухом. Для тех, кто занимается спортом, также есть отличное решение. ФОК Локомотив всегда к вашим услугам. Огромный стадион, различные секции прекрасно разбавят ваш досуг. Остановка общественного транспорта: Норильская . Транспортные маршруты: автобусы 10к, 13, 14, 14б, 24, 25, 30, 33, 36, 37, 39, 42, 46, 54, 60, 65, 372, 401

Читать полностью
    Позвонить Написать
    8 551 400 Р105 600 $ или 90 410
    Агент
    +7 (800) 333-03-93
    Начать чат с агентом
    Похожие предложения в Иркутске
    3-к кв. Иркутская область, Иркутск Ново-Ленино мкр, Территория 1-й ... - Фото 1
    3-к кв. Иркутская область, Иркутск Ново-Ленино мкр, Территория 1-й ... - Фото 2
    3-комнатная квартира, общая площадь 60м²

    Продаётся 3-комнатная квартира в сданном доме (1-й Ленинский квартал, 3 (Дом 3 Секция 4)), срок сдачи: IV-кв. 2022, общей площадью 60.7 кв.м., на 3 этаже. Первый Ленинский квартал - новый перспективный квартал, масштабы которого поражают. В нем предусмотрено...
    • 60 м²
    • 3-ком
    • 3/9 эт.
    8 608 600 Р
    Агент
    +7 (800) Показать номер
    Посмотреть контакты
    3-к кв. Иркутская область, Иркутск Ново-Ленино мкр, Территория 1-й ... - Фото 1
    3-к кв. Иркутская область, Иркутск Ново-Ленино мкр, Территория 1-й ... - Фото 2
    3-комнатная квартира, общая площадь 60м²

    Продаётся 3-комнатная квартира в сданном доме (1-й Ленинский квартал, 3 (Дом 3 Секция 4)), срок сдачи: IV-кв. 2022, общей площадью 60.5 кв.м., на 2 этаже. Первый Ленинский квартал - новый перспективный квартал, масштабы которого поражают. В нем предусмотрено...
    • 60 м²
    • 3-ком
    • 2/9 эт.
    8 622 900 Р
    Агент
    +7 (800) Показать номер
    Посмотреть контакты
    3-к кв. Иркутская область, Иркутск Ново-Ленино мкр, Территория 1-й ... - Фото 1
    3-к кв. Иркутская область, Иркутск Ново-Ленино мкр, Территория 1-й ... - Фото 2
    3-комнатная квартира, общая площадь 60м²

    Продаётся 3-комнатная квартира в сданном доме (1-й Ленинский квартал, 3 (Дом 3 Секция 4)), срок сдачи: IV-кв. 2022, общей площадью 60.7 кв.м., на 1 этаже. Первый Ленинский квартал - новый перспективный квартал, масштабы которого поражают. В нем предусмотрено...
    • 60 м²
    • 3-ком
    • 1/9 эт.
    8 526 000 Р
    Агент
    +7 (800) Показать номер
    Посмотреть контакты
    3-к кв. Иркутская область, Иркутск Ново-Ленино мкр, Территория 1-й ... - Фото 1
    3-к кв. Иркутская область, Иркутск Ново-Ленино мкр, Территория 1-й ... - Фото 2
    3-комнатная квартира, общая площадь 60м²

    Продаётся 3-комнатная квартира в сданном доме (1-й Ленинский квартал, 3 (Дом 3 Секция 4)), срок сдачи: IV-кв. 2022, общей площадью 60.1 кв.м., на 8 этаже. Первый Ленинский квартал - новый перспективный квартал, масштабы которого поражают. В нем предусмотрено...
    • 60 м²
    • 3-ком
    • 8/9 эт.
    8 651 500 Р
    Агент
    +7 (800) Показать номер
    Посмотреть контакты
    3-к кв. Иркутская область, Иркутск Ново-Ленино мкр, Территория 1-й ... - Фото 1
    3-к кв. Иркутская область, Иркутск Ново-Ленино мкр, Территория 1-й ... - Фото 2
    3-комнатная квартира, общая площадь 60м²

    Продаётся 3-комнатная квартира в сданном доме (1-й Ленинский квартал, 3 (Дом 3 Секция 4)), срок сдачи: IV-кв. 2022, общей площадью 60.1 кв.м., на 9 этаже. Первый Ленинский квартал - новый перспективный квартал, масштабы которого поражают. В нем предусмотрено...
    • 60 м²
    • 3-ком
    • 9/9 эт.
    8 700 000 Р
    Агент
    +7 (800) Показать номер
    Посмотреть контакты

    Не нашли подходящего объявления?

    Оставьте заявку, и наши риэлторы подберут квартиру в новостройке в районе Иркутска

    (0)