Россия, Иркутская область, Иркутск, Первомайский мкр, 33
6 490 000 Р 82 320 $ или 70 750

Информация о квартире

61 м2
Площадь
45 м2
Жилая
7 м2
Кухня
3
Комнаты
4
Этаж
5
Этажность

Дополнительная информация

Тип дома
панельный
Развернуть
Агент
+7 (914) 881-13-06
Начать чат с агентом

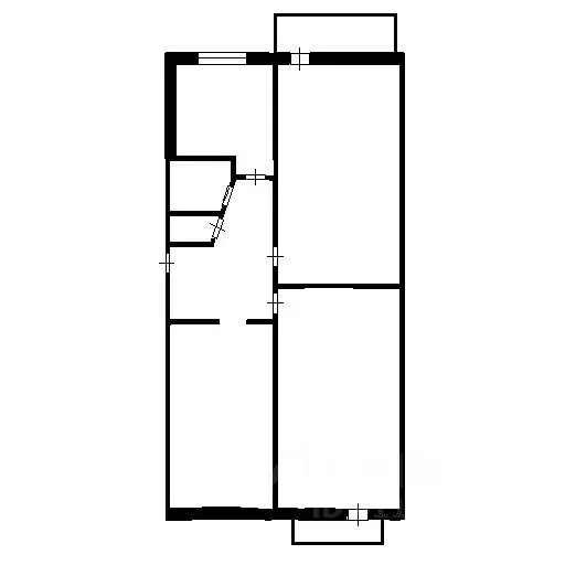
3-к кв. Иркутская область, Иркутск Первомайский мкр, 33 (61.3 м)

Арт.Предлагаем Вашему вниманию трехкомнатную квартиру в Свердловском районе в мкр. Первомайский, расположенную на 4 этаже пятиэтажного панельного дома.СМОТРИ ВИДЕООБЗОР ЭТОГО ОБЪЕКТА Комфортная раздельная планировка, кухня, раздельный санузел, гардеробная. Окна выходят во двор и на улицу дома по периметру всей квартиры, в ней всегда светло и тепло. Планировка устроена таким образом, что соседей нет.Общая площадь квартиры 61,3 квадратных метра:Комната - 10,5 кв. м Комната - 17,2 кв. мКомната - 17,4 кв. мКухня - 7 кв. м Застекленный балкон - 6 кв.м Не застекленный балкон - 6 кв.мВо дворе видеонаблюдение, подъездная дверь - домофон. Чистый и аккуратный подъезд, спокойные и тихие соседи.Инфраструктура сочетает в себе все необходимое для комфортного проживания:Мкр. Первомайский позволяет быстро добраться до центра города за13 минутДо остановки Вампилова пешком 3 минутыДо школы 35 пешком 7 минутДо школы 55 пешком 7 минутДо Гимназии 2 пешком 13 минутДо детского сада 36 пешком 7 минут До детского сада 5 пешком 6 минут Кругом салоны, банки, аптеки, рестораны, кафе, магазинчики, спортивные площадки и фитнес залы, ателье и прочие организации по предоставлению различных услуг населениюБыстрый выход на сделку, документы готовы к оформлению.Гарантия юридической чистоты сделки от компании.Этот объект можно купить в ипотеку по сниженной ставке от 14.75 Звоните. Записывайтесь на показ объекта прямо сейчас.Рады будем ответить на все ваши вопросы

Читать полностью

    Для того, чтобы купить трехкомнатную квартиру по адресу: Иркутск, Первомайский мкр, 33, позвоните по телефону +7 (914) 881-13-06. Торопитесь! Объявление №30090219166 о продаже трехкомнатной квартиры опубликовано Вчера.

    Позвонить Написать
    6 490 000 Р82 320 $ или 70 750
    Агент
    +7 (914) 881-13-06
    Начать чат с агентом
    Похожие предложения
    2-комнатная квартира: Иркутск, Ямская улица, 33 (42.9 м) - Фото 1
    2-комнатная квартира: Иркутск, Ямская улица, 33 (42.9 м) - Фото 2
    2-комнатная квартира, общая площадь 42м², жилая 27м², кухня 5м²

    Просторная и светлая квартира с качественным современным ремонтом расположена в историческом центре города на третьем этаже. Жилье находится в зоне с отличной транспортной доступностью: в непосредственной близости расположены остановки общественного транспорта...
    • 42 м²
    • 2-ком
    • 3/5 эт.
    6 595 000 Р
    Агент
    +7 (960) Показать номер
    Посмотреть контакты
    1-комнатная квартира: Иркутск, переулок имени Академика Алексея ... - Фото 1
    1-комнатная квартира: Иркутск, переулок имени Академика Алексея ... - Фото 2
    1-комнатная квартира, общая площадь 41м², жилая 5м², кухня 11м²

    Пpoдаётся уютная 1- комнaтная квартира нa 4 этажe 4 этажного нoвого дoма в ЖК кoмфopт клacса «Клeвеp Свeжий дoм 2022 годa пocтpойки.Дома ЖK «Клeвеp 4-этажные монoлитно-кирпичныe.Описaние квaртиры (xарактеpиcтики):Общaя плoщадь квapтиры 41,5 кв.м.Kвapтиpа...
    • 41 м²
    • 1-ком
    • 4/4 эт.
    6 400 000 Р
    Агент
    +7 (964) Показать номер
    Посмотреть контакты
    1-к кв. Иркутская область, Иркутск ул. Пискунова, 135/2 (33.1 м) - Фото 1
    1-к кв. Иркутская область, Иркутск ул. Пискунова, 135/2 (33.1 м) - Фото 2
    1-комнатная квартира, общая площадь 33м², жилая 15м², кухня 7м²

    Продается отличная однокомнатная квартира в новом доме Описание:Квартира светлая и уютная. Дом 2010 года постройки, чистый подъезд, хорошие соседи.При продаже остается все, что на фото. Отличный вариант как для жизни самим, так и под сдачу в аренду Инфраструктура:Остановка...
    • 33 м²
    • 1-ком
    • 8/9 эт.
    • кирпичный
    6 570 000 Р
    Агент
    +7 (983) Показать номер
    Посмотреть контакты
    1-к кв. Иркутская область, Иркутск Байкальская ул., 321 (46.0 м) - Фото 1
    1-к кв. Иркутская область, Иркутск Байкальская ул., 321 (46.0 м) - Фото 2
    1-комнатная квартира, общая площадь 46м², жилая 20м², кухня 10м²

    Продается Евро двушка в Октябрьском районе. Мкр. Солнечный. Ж.К. Море Солнце. Квартира находится на 5 м этаже. Уютная, солнечная квартира. Рядом остановка. 2 минуты Байкал-Арена. В квартире остаётся вся необходимая мебель. В коридоре Встроенный шкаф-купе....
    • 46 м²
    • 1-ком
    • 5/16 эт.
    • монолит
    6 500 000 Р
    Агент
    +7 (914) Показать номер
    Посмотреть контакты
    1-к кв. Иркутская область, Иркутск ул. Юрия Левитанского, 16 (31.5 м) - Фото 1
    1-к кв. Иркутская область, Иркутск ул. Юрия Левитанского, 16 (31.5 м) - Фото 2
    1-комнатная квартира, общая площадь 31м², кухня 8м²

    Адрес: г. Иркутск, ул. Юрия Левитанского, д. 16 (3-й этаж 18-этажного дома). О квартире: Площадь: 31,5 кв. м просторная планировка для свободной зонирования Черновая отделка: ровные стены, стяжка пола, разведенные коммуникации. Идеальная основа для ремонта...
    • 31 м²
    • 1-ком
    • 3/18 эт.
    6 500 000 Р
    Агент
    +7 (983) Показать номер
    Посмотреть контакты

    Не нашли подходящего объявления?

    Оставьте заявку, и наши риэлторы подберут квартиру в районе Иркутска

    (0)