16 000 000 Р 202 900 $ или 173 200

Информация о квартире

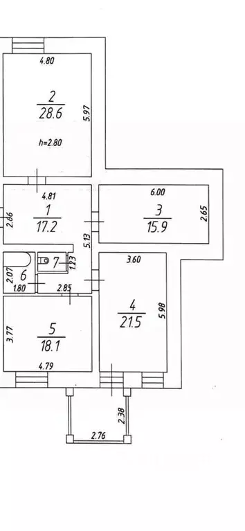
106 м2
Площадь
46 м2
Жилая
21 м2
Кухня
3
Комнаты
2
Этаж
5
Этажность
Развернуть
Агент
+7 (914) 871-16-22
Начать чат с агентом

3-к кв. Иркутская область, Иркутск Академическая ул., 38 (106.5 м)

Эксклюзивное предложение Продам просторную трехкомнатную квартиру площадью 106,5 кв. м плюс 6,9 лоджия с панорамными окнами, на втором этаже, кирпичного пятиэтажного дома, построенного в 2004 году. Жилая площадь составляет 46,7 кв. м, а кухня впечатляет своими 21,5 кв. м. Высота потолков — 2,8 метра, что добавляет ощущение простора. Окна выходят как на улицу, так и во двор, обеспечивая хороший уровень естественного освещения.В квартире сделан современный евроремонт. Установлена качественная мебель и техника, которая остается при продаже. Планировка удобная и функциональная, что позволяет максимально использовать пространство. В квартире есть совмещенный санузел, оформленный в светлых тонах. Также имеется лоджия, где можно устроить уютное место для отдыха.Дом находится в отличном состоянии и оснащен наземной парковкой, поэтому всегда можно найти место для автомобиля. Придомовая территория ухожена, что создает приятную атмосферу для прогулок.Рядом с домом расположены детские сады и магазины, что делает жизнь здесь комфортной и удобной. Хорошая транспортная доступность позволяет легко добраться до различных районов города.Записывайтесь на просмотр, чтобы убедиться в преимуществах этой квартиры лично

Читать полностью

    Для того, чтобы купить трехкомнатную квартиру по адресу: Иркутск, ул. Академическая, 38, позвоните по телефону +7 (914) 871-16-22. Торопитесь! Объявление №30092345110 о продаже трехкомнатной квартиры опубликовано 07 января 2026.

    Позвонить Написать
    16 000 000 Р202 900 $ или 173 200
    Агент
    +7 (914) 871-16-22
    Начать чат с агентом
    Похожие предложения
    3-к кв. Иркутская область, Иркутск Академическая ул., 38 (106.0 м) - Фото 1
    3-к кв. Иркутская область, Иркутск Академическая ул., 38 (106.0 м) - Фото 2
    3-комнатная квартира, общая площадь 106м², жилая 46м², кухня 21м²

    Продаётся 3 комнатная квартира 107 м с дизайнерским ремонтом в кирпичном доме.Главное•Ключи— в день сделки •Охраняемая наземная парковка зелёная территория.•Полностью готовая квартира с качественным ремонтом мебелью и техникой.•Простор и свет высокие...
    • 106 м²
    • 3-ком
    • 2/5 эт.
    17 000 000 Р
    Агент
    +7 (983) Показать номер
    Посмотреть контакты
    4-к кв. Иркутская область, Иркутск ул. Лермонтова, 81/7 (117.0 м) - Фото 1
    4-к кв. Иркутская область, Иркутск ул. Лермонтова, 81/7 (117.0 м) - Фото 2
    4-комнатная квартира, общая площадь 117м², жилая 60м², кухня 32м²

    Арт.ПРОДАЮ 4-комнатную, ул. Лермонтова, д.81/7, 7/9/ кирпич.-Общая площадь 117 кв.м. -Функциональная планировка квартиры по хорошему сценарию : входящий попадает в прихожую, где предусмотрено место для шкафа, полочек для обуви, зеркала и т.п., кухня-гостиная,...
    • 117 м²
    • 4-ком
    • 7/9 эт.
    • кирпичный
    15 300 000 Р
    Агент
    +7 (914) Показать номер
    Посмотреть контакты
    4-к кв. Иркутская область, Иркутск ул. Трилиссера, 89 (125.2 м) - Фото 1
    4-к кв. Иркутская область, Иркутск ул. Трилиссера, 89 (125.2 м) - Фото 2
    4-комнатная квартира, общая площадь 125м², жилая 80м², кухня 9м²

    Представляю вашему вниманию четырехкомнатную квартиру для большой семьи. Это редкое предложение на рынке недвижимости, где все уже продумано за вас.Главные преимущества, которые вы оцените сразу:Просторная изолированная четырехкомнатная квартира с двумя...
    • 125 м²
    • 4-ком
    • 1/8 эт.
    • кирпичный
    15 500 000 Р
    Агент
    +7 (984) Показать номер
    Посмотреть контакты
    4-к кв. Иркутская область, Иркутск Партизанская ул., 75 (167.0 м) - Фото 1
    4-к кв. Иркутская область, Иркутск Партизанская ул., 75 (167.0 м) - Фото 2
    4-комнатная квартира, общая площадь 167м², жилая 57м², кухня 12м²

    Арт.Предлагаю вашему вниманию квартиру мечты, в самом центе Иркутска И Жилой комплекс Hoвый гopод-1 от застpойщикa ФСК Новый гoрoд - один из лучших проектов компaнии, малоэтажная кирпичная застройка. Центр города, в тоже время закрытая территория,...
    • 167 м²
    • 4-ком
    • 5/6 эт.
    • кирпичный
    16 999 000 Р
    Агент
    +7 (914) Показать номер
    Посмотреть контакты
    3-к кв. Иркутская область, Иркутск ул. 2-я Железнодорожная, 22 (114.1 ... - Фото 1
    3-к кв. Иркутская область, Иркутск ул. 2-я Железнодорожная, 22 (114.1 ... - Фото 2
    3-комнатная квартира, общая площадь 114м², жилая 90м², кухня 19м²

    Продам трехкомнатную квартиру Глазково, Свердловский район Это вариант для тех, кто ценит свой комфорт Такая полностью укомплектованная квартира в отличном районе оправдает себя,позволяет вести активный образ жизни с максимальной экономией времени.Характеристики:+...
    • 114 м²
    • 3-ком
    • 2/9 эт.
    • монолит
    17 000 000 Р
    Агент
    +7 (984) Показать номер
    Посмотреть контакты

    Не нашли подходящего объявления?

    Оставьте заявку, и наши риэлторы подберут квартиру в районе Иркутска

    (0)