6 600 000 Р 83 770 $ или 71 770

Информация о квартире

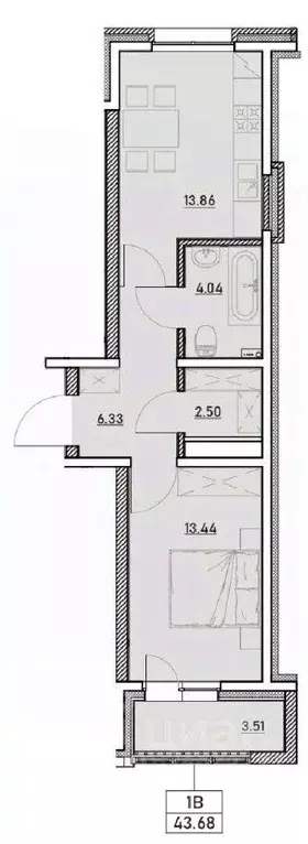
39 м2
Площадь
20 м2
Жилая
6 м2
Кухня
2
Комнаты
10
Этаж
14
Этажность
Развернуть
Агент
+7 (963) 958-62-67
Начать чат с агентом

2-комнатная квартира: Иркутск, микрорайон Ново-Ленино, территория 1-й ...

Продается двухкомнатная квартира в новом жилом комплексе «Первый Ленинский Квартал , сдача которого запланирована на 2025 год.Объект предлагается с полной готовностью к проживанию: выполнен современный ремонт и установлена новая мебель. Планировка включает просторную кухню-гостиную, изолированную спальню и прихожую. В отделке использованы качественные материалы: ламинат 33 класса, флизелиновые обои, натяжные сатиновые потолки и керамогранит на балконе. Все инженерные решения продуманы — медная проводка, достаточное количество розеток, пластиковые откосы на окнах. Кухня оборудована полным комплектом встроенной техники (варочная панель, духовой шкаф, холодильник) и гарнитуром фабрики KIT с двухлетней гарантией, а также мойкой из искусственного камня. В подарок новым владельцам остается вся обстановка, включая диван, кровать, шкафы, гардеробную систему, шторы и предметы интерьера. Квартира расположена на солнечной, не ветреной стороне с видом в сторону центра. Большой балкон имеет современное остекление и защитные перила. Жилой комплекс отличается развитой инфраструктурой: в шаговой доступности находятся остановки общественного транспорта (более 15 маршрутов), супермаркеты, детские сады и школы, филиалы поликлиник и спортивный комплекс «Локомотив . Дорога до центра города занимает примерно 15 минут. В подъезде установлена система «умный домофон , во дворе — детская площадка. Квартира абсолютно новая, в ней никто не проживал, права собственности не обременены. Просмотр возможен в любое удобное время по предварительной договоренности. Код пользователя: 192918Номер в базе:

Читать полностью

    Для того, чтобы купить двухкомнатную квартиру по адресу: Иркутск, позвоните по телефону +7 (963) 958-62-67. Торопитесь! Объявление №30092736769 о продаже двухкомнатной квартиры опубликовано 30 декабря 2025.

    Позвонить Написать
    6 600 000 Р83 770 $ или 71 770
    Агент
    +7 (963) 958-62-67
    Начать чат с агентом
    Похожие предложения
    1-к кв. Иркутская область, Иркутск ул. Баррикад, 62/10 (43.0 м) - Фото 1
    1-к кв. Иркутская область, Иркутск ул. Баррикад, 62/10 (43.0 м) - Фото 2
    1-комнатная квартира, общая площадь 43м², жилая 20м², кухня 8м²

    Арт.Продаётся стильная евро-двушка в сердце обновляющегося района Светлая, просторная и невероятно уютная квартира с большой кухней-гостиной и отдельной спальней.Интерьер выполнен в светлых тонах, создающих ощущение простора, уюта и чистоты.Из окон открывается...
    • 43 м²
    • 1-ком
    • 14/17 эт.
    • монолит
    6 550 000 Р
    Агент
    +7 (914) Показать номер
    Посмотреть контакты
    Студия Иркутская область, Иркутск ул. Якоби, 8 (41.0 м) - Фото 1
    Студия Иркутская область, Иркутск ул. Якоби, 8 (41.0 м) - Фото 2
    студия, общая площадь 41м², жилая 20м², кухня 6м²

    Арт.Срочно продам квартиру в ЖК Якоби Парк, на берегу залива, свежий воздух, лес, места для прогулок и отдыха. Квартира находится в сданном доме, на 14 этаже, застекленная лоджия. Квартира студия, широкая комната и кухня. Просторный коридор с местом для...
    • 41 м²
    • студия-ком
    • 14/17 эт.
    • кирпичный
    6 500 000 Р
    Агент
    +7 (914) Показать номер
    Посмотреть контакты
    1-к кв. Иркутская область, Иркутск ул. Сибирских Партизан, 1А/1 (40.5 ... - Фото 1
    1-к кв. Иркутская область, Иркутск ул. Сибирских Партизан, 1А/1 (40.5 ... - Фото 2
    1-комнатная квартира, общая площадь 40м², жилая 13м², кухня 13м²

    Спешите У застройщика не осталось таких квартир Продается 1 кмн. кв. в современном жилом комплексе ZENITH. Ключи в день сделки. Квартира - распашонка на две стороны, с/узел совмещённый, вместительная гардеробная, стяжка пола, увеличенные окна высотой...
    • 40 м²
    • 1-ком
    • 8/13 эт.
    6 700 000 Р
    Агент
    +7 (983) Показать номер
    Посмотреть контакты
    1-к кв. Иркутская область, Иркутск Радужный мкр, 103 (39.0 м) - Фото 1
    1-к кв. Иркутская область, Иркутск Радужный мкр, 103 (39.0 м) - Фото 2
    1-комнатная квартира, общая площадь 39м², жилая 31м², кухня 3м²

    Арт.Продается 1-к квартира с свежим ремонтом в м-н Радужный 103 Особенности квартиры :Свежий ремонт, не требует дополнительных вложений.Уютный вид во двор, на парковку — тишина и спокойствие.Без обременений, квартира в отличном состоянии.Никто не прописан,...
    • 39 м²
    • 1-ком
    • 2/4 эт.
    • монолит
    6 700 000 Р
    Агент
    +7 (914) Показать номер
    Посмотреть контакты
    2-к кв. Иркутская область, Иркутск ул. Бородина, 13/1 (40.0 м) - Фото 1
    2-к кв. Иркутская область, Иркутск ул. Бородина, 13/1 (40.0 м) - Фото 2
    2-комнатная квартира, общая площадь 40м², жилая 18м², кухня 9м²

    В Продаже отличная квартира.Полностью готова к проживанию в обычном жилом состоянии. Почему это выгодное предложениеЭта квартира — уникальный шанс приобрести жильё в одном из самом перспективном районе Иркутска.Идеальное расположение: всего в 500 метрах...
    • 40 м²
    • 2-ком
    • 6/10 эт.
    • монолит
    6 500 000 Р
    Агент
    +7 (914) Показать номер
    Посмотреть контакты

    Не нашли подходящего объявления?

    Оставьте заявку, и наши риэлторы подберут квартиру в районе Иркутска

    (0)