5 250 000 Р 67 940 $ или 57 500

Информация о квартире

40 м2
Площадь
28 м2
Жилая
5 м2
Кухня
2
Комнаты
3
Этаж
5
Этажность

Дополнительная информация

Тип дома
панельный
Развернуть
Агент
+7 (914) 000-54-93
Начать чат с агентом

2-к кв. Иркутская область, Иркутск бул. Постышева, 6 (40.0 м)

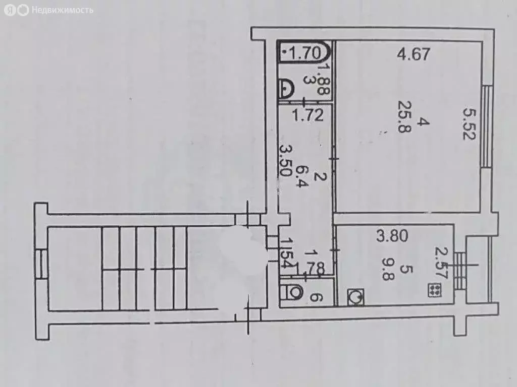
Код объекта: 1883391.Продается очень солнечная, уютная двухкомнатная квартира с раздельными комнатами площадью 40 кв. м на бульваре Постышева, д. 6.Квартира расположена на третьем этаже 5 этажного панельного дома. Из окон можно любоваться видом красивого бульвара с ночной подсветкой. Солнечная сторона, что придает квартире уют. Квартира угловая, два окна в зале, но очень теплая, зимой даже окна открывают, т.к. жарко. Балкон застеклен. Напротив подъезда находиться супермаркет Слата , через дорогу детский парк, детская площадка с фонтаном, где часто проходят различные городские праздники. Для детей рядом каток/футбольное поле, Центр детского творчества Октябрьский б. Постышева 20, где проходят бесплатные разнообразные занятия.В шаговой доступности:Аптеки: Алмеда , Фармэкспресс , Фармэконом .Магазины: Слата , Молоко , Вулкан .Кафе и рестораны: Дёнер паб , кафе фастфуда, ЧебурекМи , на набережной ночной клуб Кисс , семейный ресторан Мамини др.Салоны красоты: СтриЖЖка , Вулкан , кабинет парикмахера Татьяны.Детские сады: Солнечный город 122, детский сад 133, Вверх .Школы: средняя школа 39, школа им. героя России генерала армии Е. Н. Зиничева, средняя школа 27.Поликлиники и больницы: Научный центр проблем здоровья семьи и репродукции человека, областной кожно-венерологический диспансер, Иркутская городская клиническая больница 1.Квартира под ремонт. Эта квартира — выгодное предложение по доступной цене для жилья или сдачи в аренду. Не упустите шанс стать обладателем комфортного жилья в хорошем районе Иркутска

Читать полностью

    Для того, чтобы купить двухкомнатную квартиру по адресу: Иркутск, бул. Постышева, 6, позвоните по телефону +7 (914) 000-54-93. Торопитесь! Объявление №30093787790 о продаже двухкомнатной квартиры опубликовано Сегодня.

    Позвонить Написать
    5 250 000 Р67 940 $ или 57 500
    Агент
    +7 (914) 000-54-93
    Начать чат с агентом
    Похожие предложения
    1-комнатная квартира: Иркутск, Норильская улица, 9Б (49.5 м) - Фото 1
    1-комнатная квартира: Иркутск, Норильская улица, 9Б (49.5 м) - Фото 2
    1-комнатная квартира, общая площадь 49м², жилая 35м², кухня 10м²

    Продается однокомнатная квартира на Норильской, 9Б, расположенная на пятом этаже кирпичного дома. Объект отличается продуманной и функциональной планировкой: просторная изолированная комната, которую при желании можно разделить на две полноценные зоны,...
    • 49 м²
    • 1-ком
    • 5/5 эт.
    5 250 000 Р
    Агент
    +7 (960) Показать номер
    Посмотреть контакты
    3-к кв. Иркутская область, Иркутск ул. Розы Люксембург, 39 (56.8 м) - Фото 1
    3-комнатная квартира, общая площадь 56м², жилая 40м², кухня 5м²

    ВОЗМОЖНОСТЬ ПРИОБРЕСТИ ПО СТАВКЕ от 12,75 Продается светлая просторная квартира по адресу: ул. Розы Люксембург д. 39Страховка в ПОДАРОК от нашей компании Удобная 3-х комнатная квартира с раздельной планировкой, 2 отдельные комнаты, большой зал, санузел...
    • 56 м²
    • 3-ком
    • 4/5 эт.
    • кирпичный
    5 300 000 Р
    Агент
    +7 (914) Показать номер
    Посмотреть контакты
    1-к кв. Иркутская область, Иркутск ул. Маршала Конева, 38/1 (35.0 м) - Фото 1
    1-к кв. Иркутская область, Иркутск ул. Маршала Конева, 38/1 (35.0 м) - Фото 2
    1-комнатная квартира, общая площадь 35м², жилая 17м², кухня 13м²

    Квартира мечты в Свердловском районе Продаётся 1-комнатная квартира с выгодными условиями от Самолёт Плюс . Уникальное предложение для вашего будущего Эта квартира — идеальный вариант для тех, кто ценит комфорт и выгодные условия. А с ипотекой ...
    • 35 м²
    • 1-ком
    • 1/9 эт.
    • кирпичный
    5 255 000 Р
    Агент
    +7 (914) Показать номер
    Посмотреть контакты
    3-к кв. Иркутская область, Иркутск ул. Ярославского, 276 (59.6 м) - Фото 1
    3-к кв. Иркутская область, Иркутск ул. Ярославского, 276 (59.6 м) - Фото 2
    3-комнатная квартира, общая площадь 59м², жилая 34м², кухня 6м²

    Продам 3 комнатную квартиру с раздельными комнатами, и балконом 1 удобный этаж, жилое состояние, удобная планировка, квартира тёплая, окна на две стороны-солнышко по кругу. Напротив дома детский садик, рядом...
    • 59 м²
    • 3-ком
    • 1/5 эт.
    • монолит
    5 200 000 Р
    Агент
    +7 (984) Показать номер
    Посмотреть контакты
    Студия Иркутская область, Иркутск Киренская ул., 46/1 (29.0 м) - Фото 1
    Студия Иркутская область, Иркутск Киренская ул., 46/1 (29.0 м) - Фото 2
    студия, общая площадь 29м², жилая 18м², кухня 5м²

    Продается уютная студия в пяти минутах от центра города, улица Киренская, Жилой комплекс Март. Дом сдан 3 года назад, все соседи закончили ремонт. Территория дома под шлагбаумом, нет лишних автомобилей соседей. В доме два лифта - грузовой и пассажирский....
    • 29 м²
    • студия-ком
    • 15/17 эт.
    • кирпичный
    5 300 000 Р
    Агент
    +7 (984) Показать номер
    Посмотреть контакты

    Не нашли подходящего объявления?

    Оставьте заявку, и наши риэлторы подберут квартиру в районе Иркутска

    (0)