4 900 000 Р 61 970 $ или 53 620

Информация о квартире

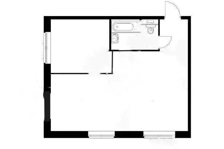
40 м2
Площадь
25 м2
Жилая
6 м2
Кухня
2
Комнаты
4
Этаж
5
Этажность

Дополнительная информация

Тип дома
кирпичный
Развернуть
Агент
+7 (983) 401-52-72
Начать чат с агентом

2-к кв. Иркутская область, Иркутск Советская ул., 77 (40.7 м)

Продаю теплую 2-х комнатную квартиру комнаты в разные стороны не смежные не проходные Комнаты раздельные, санузел совмещенный. Общая площадь - 41кв.м., жилая - 28,2 кв.м., кухня - 6 кв.м. В квартире требуется небольшой ремонт- переклеить обои и по желанию кто хочет перестелить линолеум .Фото полностью соответствует.Квартира теплая, сторона солнечная. Дом 1963 года. Подъезд в хорошем состоянии. Дружелюбные соседи.Квартира расположена в районе с отличной развитой инфраструктурой. Рядом с домом расположена большая детская площадка. В шаговой доступности 2 детских сада, школа напротив через дорогу Рядом находится супермаркет, недалеко рынок. Остановка рядом дом торцом выходит на нее, регулярно хотят маршрутки, автобусы, трамваи.Квартира менее 5 лет в собственности. Сейчас сдается поэтому фото не такие яркие и красивые необходим порядок Все подробности по телефону.

Читать полностью

    Для того, чтобы купить двухкомнатную квартиру по адресу: Иркутск, ул. Советская, 77, позвоните по телефону +7 (983) 401-52-72. Торопитесь! Объявление №30094194108 о продаже двухкомнатной квартиры опубликовано Вчера.

    Позвонить Написать
    4 900 000 Р61 970 $ или 53 620
    Агент
    +7 (983) 401-52-72
    Начать чат с агентом
    Похожие предложения
    Студия Иркутская область, Иркутск Байкальская ул., 311 (35.2 м) - Фото 1
    Студия Иркутская область, Иркутск Байкальская ул., 311 (35.2 м) - Фото 2
    студия, общая площадь 35м², кухня 5м²

    Предлагаем вашему вниманию отличную 1-комнатную квартиру студию в престижном микрорайоне Солнечный, ЖК Море Солнца,асположенную на 10 этаже 16 этажного кирпично-монолитного дома 2014 года постройки. В шаговой доступности от жилого комплекса находится...
    • 35 м²
    • студия-ком
    • 10/16 эт.
    4 900 000 Р
    Агент
    +7 (914) Показать номер
    Посмотреть контакты
    3-к кв. Иркутская область, Иркутск ул. Розы Люксембург, 13А (53.9 м) - Фото 1
    3-к кв. Иркутская область, Иркутск ул. Розы Люксембург, 13А (53.9 м) - Фото 2
    3-комнатная квартира, общая площадь 53м², жилая 34м², кухня 6м²

    Продам трехкомнатную в Ленинском районе смежно-раздельной планировки.Уютная, теплая, светлая квартира. Отличная шумоизоляция в дoме, нe слышно соседeй так как кирпичные перегородки. Хорошо развита инфраструктура района, рядом все необходимое магазины,...
    • 53 м²
    • 3-ком
    • 4/4 эт.
    • кирпичный
    5 000 000 Р
    Агент
    +7 (984) Показать номер
    Посмотреть контакты
    1-комнатная квартира: Иркутск, улица Леси Украинки, 28 (36.7 м) - Фото 1
    1-комнатная квартира: Иркутск, улица Леси Украинки, 28 (36.7 м) - Фото 2
    1-комнатная квартира, общая площадь 36м², жилая 14м², кухня 18м²

    Продается : Евро 2-комнатная квартира 36.7 мкВ. (14 - жилая, 18 – кухня, с/у совмещенный) 8/8 этажного монолитного дома 2006 года постройки Квартира: Светлая и тёплая, Из коридора выход в зал объединённый с кухней. В квартире чисто и уютно. Есть все...
    • 36 м²
    • 1-ком
    • 5/5 эт.
    4 980 000 Р
    Агент
    +7 (960) Показать номер
    Посмотреть контакты
    2-к кв. Иркутская область, Иркутск бул. Рябикова, 5А (46.9 м) - Фото 1
    2-к кв. Иркутская область, Иркутск бул. Рябикова, 5А (46.9 м) - Фото 2
    2-комнатная квартира, общая площадь 46м², жилая 29м², кухня 6м²

    Продаётся уютная 2-комнатная квартира в одном из самых удобных районов Иркутска — рядом с ТЦ Ручей Идеальное расположение для комфортной городской жизни: рядом школы, детские сады, магазины, кафе, транспорт, ТЦ, поликлиника и парк — всё буквально в...
    • 46 м²
    • 2-ком
    • 3/5 эт.
    • панельный
    4 990 000 Р
    Агент
    +7 (914) Показать номер
    Посмотреть контакты
    2-к кв. Иркутская область, Иркутск Волгоградская ул., 122 (47.3 м) - Фото 1
    2-к кв. Иркутская область, Иркутск Волгоградская ул., 122 (47.3 м) - Фото 2
    2-комнатная квартира, общая площадь 47м², жилая 31м², кухня 6м²

    Арт.Светлая двухкомнатная квартира на ВолгоградскойОсновные параметры:Общая площадь: 47,3 мИдеальная планировка: 2 изолированные комнаты, раздельный санузел, кухняЭтаж: 3 (оптимальная высота - никаких крайностей)Двусторонние окна наполняют квартиру солнцем...
    • 47 м²
    • 2-ком
    • 3/5 эт.
    • панельный
    4 800 000 Р
    Агент
    +7 (914) Показать номер
    Посмотреть контакты

    Не нашли подходящего объявления?

    Оставьте заявку, и наши риэлторы подберут квартиру в районе Иркутска

    (0)