4 980 000 Р 61 370 $ или 53 300

Информация о квартире

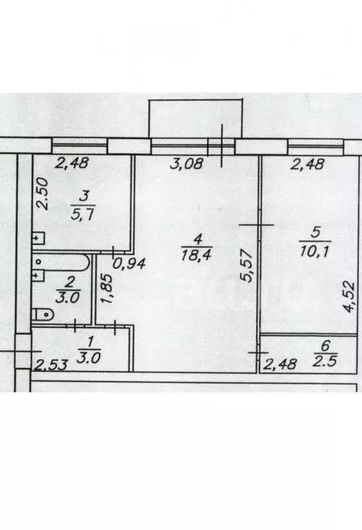
44 м2
Площадь
30 м2
Жилая
5 м2
Кухня
2
Комнаты
4
Этаж
4
Этажность

Дополнительная информация

Тип дома
кирпичный
Развернуть
Агент
+7 (984) 270-49-77
Начать чат с агентом

2-к кв. Иркутская область, Иркутск Академическая ул., 18 (44.7 м)

Уважаемые покупатели Продается уютная 2-х квартира под ремонт, расположенная на четвертом этаже четырехэтажного кирпичного дома. В квартире сделан демонтаж, очищены стены от старой штукотурки, сняты старые деревянные полы, вынесен мусор. Установлены новые стеклопакеты, заменена вся система отопления, установлены новые медные трубы, установлен радиатор отопленя. Это идеальное предложение для тех, кто хочет создать свое уникальное пространство, максимально удовлетворяющее личным потребностям. В объявлении представлен вариант ремонта и оформления пространства.Квартира имеет удобную планировку, в ней достаточно пространства для реализации любых дизайнерских идей. Большие окна обеспечивают хорошее освещение в течение всего дня и создают атмосферу уюта и тепла. Кирпичные стены гарантируют отличную звукоизоляцию и долговечность.Расположение квартиры в спокойном районе станет ощутимым преимуществом для семейных людей и тех, кто ценит комфорт и тишину. При этом инфраструктура вокруг очень развита: в пешей доступности находятся магазины, аптеки, школы и детские сады, что делает жизнь удобной и комфортной. Также не стоит забывать о близости транспортных развязок, что позволит легко добираться до центра города и других районов.Эта квартира прекрасная возможность для инвестиций и создания собственного идеального жилья. Не упустите шанс реализовать свои мечты

Читать полностью

    Для того, чтобы купить двухкомнатную квартиру по адресу: Иркутск, ул. Академическая, 18, позвоните по телефону +7 (984) 270-49-77. Торопитесь! Объявление №30094310187 о продаже двухкомнатной квартиры опубликовано Вчера.

    Позвонить Написать
    4 980 000 Р61 370 $ или 53 300
    Агент
    +7 (984) 270-49-77
    Начать чат с агентом
    Похожие предложения
    2-комнатная квартира: Иркутск, Академическая улица, 18 (44.7 м) - Фото 1
    2-комнатная квартира: Иркутск, Академическая улица, 18 (44.7 м) - Фото 2
    2-комнатная квартира, общая площадь 44м², жилая 30м², кухня 5м²

    Уважаемые покупатели Продается уютная 2-хквартира под ремонт, расположенная на четвертом этаже четырехэтажного кирпичного дома. В квартире сделан демонтаж, очищены стены от старой штукотурки, сняты старые деревянные полы, вынесен мусор. Установлены новые...
    • 44 м²
    • 2-ком
    • 4/4 эт.
    4 980 000 Р
    Агент
    +7 (914) Показать номер
    Посмотреть контакты
    3-к кв. Иркутская область, Иркутск Академическая ул., 60Г (57.1 м) - Фото 1
    3-к кв. Иркутская область, Иркутск Академическая ул., 60Г (57.1 м) - Фото 2
    3-комнатная квартира, общая площадь 57м², кухня 12м²

    Продается 3-комнатная квартира площадью 57 квадратных метров, расположенная в Свердловском районе рядом с 6-й детской поликлиникой и ТЦ Версаль. Квартира без ремонта, что дает возможность реализовать свои дизайнерские идеи. Основные характеристики:-...
    • 57 м²
    • 3-ком
    • 4/5 эт.
    • панельный
    4 900 000 Р
    Агент
    +7 (914) Показать номер
    Посмотреть контакты
    2-к кв. Иркутская область, Иркутск ул. Костычева, 6 (32.0 м) - Фото 1
    2-к кв. Иркутская область, Иркутск ул. Костычева, 6 (32.0 м) - Фото 2
    2-комнатная квартира, общая площадь 32м²

    Описание:Предалагаю вашему внимаю отличную квартиру в хорошем доме Полностью мебелирована и укомплектована - готова к заезду полностью Инфраструктура: Остановка общественного транспорта в 3 минутах ходьбы. Очень развита инфраструктура - рядом школа,...
    • 32 м²
    • 2-ком
    • 1/9 эт.
    5 100 000 Р
    Агент
    +7 (914) Показать номер
    Посмотреть контакты
    общая площадь 38м²

    Данные в объявлении обновляются раз в сутки. Подробные параметры объекта, актуальные данные и НДС посмотрите на сайте электронных торгов.
    • 38 м²
    • 1/13 эт.
    5 042 904 Р
    Агент
    +7 (914) Показать номер
    Посмотреть контакты
    1-к кв. Иркутская область, Иркутск пер. Археолога Михаила Герасимова, ... - Фото 1
    1-к кв. Иркутская область, Иркутск пер. Археолога Михаила Герасимова, ... - Фото 2
    1-комнатная квартира, общая площадь 33м², кухня 7м²

    УСПЕВАЙТЕ КУПИТЬ КBАPTИPУ СВОЕЙ МЕЧТЫ Продаётся отличная 1 комнатная квартира в прекрасном районе города Иркутска с развитой инфраструктурой. Квартира расположена на 3 этаже 16-ти этажного дома по адресу переулок Археолога Михаила Герасимова д 8. Работают...
    • 33 м²
    • 1-ком
    • 3/16 эт.
    4 990 000 Р
    Агент
    +7 (984) Показать номер
    Посмотреть контакты

    Не нашли подходящего объявления?

    Оставьте заявку, и наши риэлторы подберут квартиру в районе Иркутска

    (0)