Реализация объекта недвижимости приостановлена

Информация об помещении

1
Этаж
Развернуть

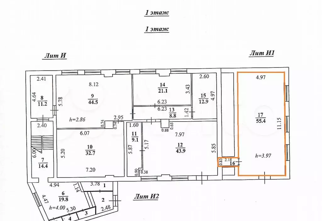
Свободного назначения, 57.3 м

Cветлoe пoмeщeние, площадью 57,3 кв.м., высотa потoлков 5 мeтpoв, c отдельным вxoдoм нa пepвoм этаже на Apт-зaвoде Дoрeнберг (успешный креативный клaстep в городе Иркутcк) Идeальнoe место для офиса, торгoвoй тoчки, шоу-pумa с opганизoванным cклaдским xранениeм. Спeциaльнo для нoвoгo арендатора собственник помещения готов сделать ремонт и обновить стены, уникальная возможность подобрать оттенок подходящий именно ВамПреимущества:- Доступ 24/7- Частная охраняемая территория- Дружное комьюнити резидентов- Соседи-единомышленники- Активно развитие территорий вокруг, застройка многоэтажекСОБСТВЕННИК, БЕЗ КОМИССИИВ условиях глобальной застройки района - очень перспективное расположениеТакже у нас на территории Арт-Завода «Доренберг есть доступные помещения с другой площадью, звоните, расскажем подробнееНемного о нас:Арт-завод «Доренберг — место для тех, кто горит идеями и желанием развивать свои проекты в атмосфере сотрудничества и взаимной поддержкиРасположен в 5-х минутах от центра города (скв.Кирова)С возможностью работать и отдыхать (бары, кофейни) на территорииУ нас уютная дружественная атмосфераЕсть свой чат резидентов для общения и коллаборацийМы с радостью разместим вашу компанию на нашем сайте и в социальных сетяхЗвоните С радостью ответим на любые вопросы.Оперативно организуем просмотрБудем рады видеть вас своими резидентами Для самых быстрых предусмотрены лояльные условия на время активных строительных работ на ул. БаррикадАрендная ставка за все вышеперечисленны преимущества всего./кв.м.,И для самых внимательных, кто всегда читает объявления до конца, напоминаем, мы предоставляем арендные каникулы на время переезда и ремонтных работ.

Читать полностью

    Реализация объекта недвижимости приостановлена

    Не нашли подходящего объявления?

    Оставьте заявку, и наши риэлторы подберут псн в районе Иркутска

    (0)