23 754 Р 299 $ или 256
Развернуть
Агент
+7 (983) 240-15-50
Начать чат с агентом

Помещение свободного назначения в Иркутская область, Иркутск ул. ...

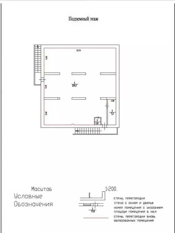
Данные получены с сайта ГИС Торги.Нежилые помещения, находящиеся на 2 этаже 2 этажного нежилого здания, (номера на поэтажном плане 1-5, общей площадью 139,4 кв.м), кадастровый номер 38:36:000012:1731, расположенного по адресу: РФ, Иркутская область, городской округ Иркутск, город Иркутск, ул. Рабочего Штаба, строение 31 е

Читать полностью
    Позвонить Написать
    23 754 Р299 $ или 256
    Агент
    +7 (983) 240-15-50
    Начать чат с агентом
    Похожие предложения
    Помещение свободного назначения в Иркутская область, Иркутск ул. ... - Фото 1
    Помещение свободного назначения в Иркутская область, Иркутск ул. ... - Фото 2
    Сдаём помещение 44.6кв.м2Подходит под многие деятельности
    • 1/10 эт.
    25 000 Р
    Агент
    +7 (983) Показать номер
    Посмотреть контакты
    Помещение свободного назначения в Иркутская область, Иркутск Советская ... - Фото 1
    Помещение свободного назначения в Иркутская область, Иркутск Советская ... - Фото 2
    Ищете идеальное место для вашего бизнеса?Представляем вашему вниманию универсальное помещение площадью 25 кв. м., расположенное в цокольном этаже двухэтажного здания по адресу: ул. Советская, 120.Преимущества помещения:Готовность к использованию: В помещении...
    • -1/2 эт.
    25 000 Р
    Агент
    +7 (984) Показать номер
    Посмотреть контакты
    Помещение свободного назначения в Иркутская область, Иркутск ул. ... - Фото 1
    Помещение свободного назначения в Иркутская область, Иркутск ул. ... - Фото 2
    Аренда помещения под автотематику в ИркутскеАдрес: г. Иркутск, ул. Баррикад, 24АПлощадь: 60 мИдеально подходит для:* Автосервиса с зоной ремонта* Автоэлектрика и диагностики* Магазина автозапчастей* Продажи автоэлектроники* Мастерской по ремонту электроники*...
    • 1/1 эт.
    24 000 Р
    Агент
    +7 (914) Показать номер
    Посмотреть контакты
    Помещение свободного назначения в Иркутская область, Иркутск ул. ... - Фото 1
    Помещение свободного назначения в Иркутская область, Иркутск ул. ... - Фото 2
    Данные получены с сайта ГИС Торги.Технические характеристики электрические сети, центральное отопление, с/у общий в коридоре. Требуется ремонт.
    23 166 Р
    Агент
    +7 (984) Показать номер
    Посмотреть контакты
    Помещение свободного назначения в Иркутская область, Иркутск ул. ... - Фото 1
    Помещение свободного назначения в Иркутская область, Иркутск ул. ... - Фото 2
    Данные получены с сайта ГИС Торги.Технические характеристики электрические сети, центральное отопление, с/у общий в коридоре. Состояние удовлетворительное.
    23 166 Р
    Агент
    +7 (984) Показать номер
    Посмотреть контакты

    Не нашли подходящего объявления?

    Оставьте заявку, и наши риэлторы подберут псн в районе Иркутска

    (0)