Реализация объекта недвижимости приостановлена

Информация о квартире

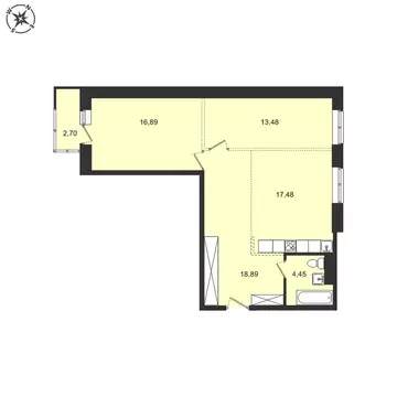
68.0 м2
Площадь
3
Комнаты
3
Этаж
5
Этажность

Дополнительная информация

Тип дома
кирпичный
Развернуть

3-к кв. Иркутская область, Иркутский муниципальный округ, пос. ...

Продаётся 3-комнатная квартира в сданном доме (Дом 1 (БС 1)), срок сдачи: I-кв. 2023, общей площадью 68.06 кв.м., на 3 этаже. Благодаря своему месторасположению, микрорайон Современник имеет развитую внешнюю инфраструктуру. На территории микрорайона расположен остановочный пункт, есть собственный маршрут, на котором жители могут добраться в центр города. Открыты магазины. В центре Микрорайона Современник планируется строительство школы и детского сада. Внутренний двор ориентирован на людей, а не на машины: проезд автомобилей строго запрещен. Вы можете не беспокоиться за детей, играющих на детской площадке. Все автомобили паркуются на открытых парковках, расположенных на внешней территории. Также мы уделяем большое внимание детским и спортивным площадкам, которые так привлекают и маленьких и взрослых жителей микрорайона Современник . Двор разделен по интересам и возрастам - детские площадки для малышей и ребят постарше, площадки для занятия спортом и активных игр, уютная зона для отдыха взрослых жителей, зеленые зоны и места для мамочек с колясками - мы всегда продумываем каждую деталь наших дворов

Читать полностью

    Реализация объекта недвижимости приостановлена

    Не нашли подходящего объявления?

    Оставьте заявку, и наши риэлторы подберут квартиру в новостройке в районе Дзержинска

    (0)