7 500 000 Р 92 630 $ или 79 720

Информация о коттедже

130 м2
Площадь
2
Этажность
5 cоток
Участок

Дополнительная информация

Дом продаётся вместе с участком
есть
Развернуть
Агент
+7 (914) 010-45-63
Начать чат с агентом

Дом в Иркутская область, Иркутский муниципальный округ, Маркова рп, ...

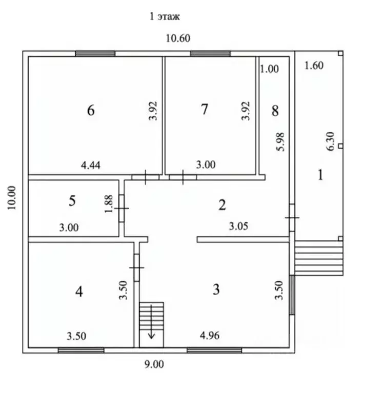
Арт.Подходит семейная ипотека Продается дом из бруса в мкр. Николов Посад, вблизи г. Иркутска Современный, комфортный загородный дом, достаточно просторный, площадью 130 квадратных метров на участке 5 соток, из строганного бруса 18х18. Отличная продуманная планировка:• Прихожая• Коридор• Бойлерная• Просторная кухня - гостиная • Совмещенный санузел. • 3 спальные комнаты.Второй этаж дома мансардного типа, под самостоятельное освоение.Отделка дома: разводка электропроводки - электричество 15кВт, разводка сантехники, установка розеток, выключателей, водонагреватель, наружная покраска стен.• Система отопления водяные теплые полы.• Канализация септик 6м3.• Водоснабжение центральное.• Фундамент ленточныйДополнительный комфорт добавляет участок площадью 5 соток ровный, солнечный. Месторасположение очень удачное: широкая дорога, хорошая транспортная развязка, отличные подъездные пути. В пешей доступности вся инфраструктура - магазины, супермаркеты, остановка маршруток. Если вы ищете загородный дом и рассматриваете микрорайоны Березовый, Ново- Иркутский, Изумрудный, Хрустальный, Николов Посад, Пушкино, СНТ Полет, ДНТ Защитник, Маркова, СНТ Домостроитель, то обратите внимание на этот вариант КОНСУЛЬТАЦИЯ ИПОТЕЧНОГО БРОКЕРА ПРОВЕДЕМ ПОЛНОЕ ЮРИДИЧЕСКОЕ СОПРОВОЖДЕНИЕ СДЕЛКИ ПОД КЛЮЧ

Читать полностью

    Для того, чтобы купить 2-этажный коттедж по адресу: Маркова, Шахматная улица, позвоните по телефону +7 (914) 010-45-63. Торопитесь! Объявление №50016476320 о продаже двухэтажного коттеджа опубликовано 19 октября 2025.

    Позвонить Написать
    7 500 000 Р92 630 $ или 79 720
    Агент
    +7 (914) 010-45-63
    Начать чат с агентом
    Похожие предложения в Марковой
    Дом в Иркутская область, Иркутский муниципальный округ, Маркова рп ... - Фото 1
    Дом в Иркутская область, Иркутский муниципальный округ, Маркова рп ... - Фото 2
    2 этажа, общая площадь 90м², участок 2 сотки

    Арт.Таунхаус в комплексной застройке. Иркутский район, СОСН МОЛОДОСТЬ, р.п. Маркова, возле ЖК Весна за Первомайским.Продается таунхаус площадью 90м2 2 этажа + Земельный участок 2 сотки Дом сдан с дизайнерским ремонтом.Отопление: 1 этаж теплый пол; 2...
    • 2 эт.
    • 90 м²
    • 2 сот.
    7 500 000 Р
    Агент
    +7 (914) Показать номер
    Посмотреть контакты
    Дом в Иркутская область, Иркутский муниципальный округ, Маркова рп, ... - Фото 1
    Дом в Иркутская область, Иркутский муниципальный округ, Маркова рп, ... - Фото 2
    2 этажа, общая площадь 125м², участок 5 соток

    ВНИМАНИЕ Продается отличный загородный дом. Расположен в коттеджном поселке Соколики (2км Мельничного тракта), общая площадь 120 м2 свободная планировка. Дом окружен чудесным сосновым лесом. ПРИИМУЩЕСТВА: - Центральна холодная вода- Центральная канализация-...
    • 2 эт.
    • 125 м²
    • 5 сот.
    7 445 000 Р
    Агент
    +7 (914) Показать номер
    Посмотреть контакты
    Дом в Иркутская область, Иркутский муниципальный округ, Маркова рп, ... - Фото 1
    Дом в Иркутская область, Иркутский муниципальный округ, Маркова рп, ... - Фото 2
    2 этажа, общая площадь 100м², участок 7 соток

    Продаётся новый, тёплый, красивый дом в пригороде Иркутска. Удобное расположение, тихое, живописное место. Дом двухэтажный, фасад оштукатурен, залита стяжка пола на первом этаже. Тёплые водяные полы, свободная планировка, удобные подъездные пути.Ждём...
    • 2 эт.
    • 100 м²
    • 7 сот.
    7 400 000 Р
    Агент
    +7 (984) Показать номер
    Посмотреть контакты
    Дом в Иркутская область, Иркутский муниципальный округ, Маркова рп, ... - Фото 1
    Дом в Иркутская область, Иркутский муниципальный округ, Маркова рп, ... - Фото 2
    2 этажа, общая площадь 140м², участок 8 соток

    В продаже просторный двухэтажный дом из газобетона на участке 8 соток.Находится в р.п. Маркова, Анисимова поле.Дом 140м2., 2025 года постройки.Ровный участок, рядом лес.Коммуникации:электричество 15 кВт.,отопление- теплый водяной пол,центральный водопровод,септик...
    • 2 эт.
    • 140 м²
    • 8 сот.
    7 500 000 Р
    Агент
    +7 (914) Показать номер
    Посмотреть контакты
    2 этажа, общая площадь 160м², участок 6 соток

    Арт.Дом из бруса на участке 6 соток в Маркова, территория Анисимова Вы можете купить этот Дом по семейной ипотеке Отлично подходит для проживания за городом Рядом конный клуб Магазин, остановка общественного транспорта и школьного автобусав...
    • 2 эт.
    • 160 м²
    • 6 сот.
    7 500 000 Р
    Агент
    +7 (983) Показать номер
    Посмотреть контакты

    Не нашли подходящего объявления?

    Оставьте заявку, и наши риэлторы подберут купить дом в районе Марковой

    (0)