83 520 Р 1 030 $ или 883

Информация об помещении

2
Этаж

Состояние и оснащение

Количество этажей
2
Развернуть
Агент
+7 (914) 890-30-79
Начать чат с агентом

Помещение свободного назначения в Иркутская область, Киренск ...

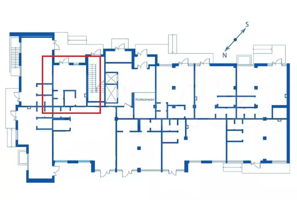
Предлагаем в аренду нежилые помещения свободного назначения площадью 106 кв.м. на 1 этаже и 10 кв.м. на 2 этаже здания. Подходят под размещение офиса, пункта выдачи заказов, торговли и др. виды деятельности. Коммунальные и эксплуатационные затраты включены в стоимость арендной платы, кроме уборки и охраны. Арендная плата с НДС. Есть возможность размещения рекламной конструкции на фасаде здания, подключения городского телефона, высокоскоростного интернета. Готовы предоставить арендные каникулы в счет проведения ремонта. Аренда от собственника - ПАО Ростелеком . Получить подробную информацию об объекте, документы, фото или договориться о просмотре, озвучить свое предложение можете по номеру, указанному в объявлении, в будние дни с пн-чт с 8.00 до 17.00, в пт с 08.00 до 16.00, или оставьте свои контакты, мы вам перезвоним.Звоните Ответим на все вопросы.

Читать полностью
    Позвонить Написать
    83 520 Р1 030 $ или 883
    Агент
    +7 (914) 890-30-79
    Начать чат с агентом
    Похожие предложения
    Помещение свободного назначения в Иркутская область, Иркутск ул. ... - Фото 1
    Помещение свободного назначения в Иркутская область, Иркутск ул. ... - Фото 2
    ОТ СОБСТВЕННИКА БЕЗ КОМИССИИПредлагаем Вашему вниманию помещение свободного назначения 70 кв.м.расположенное на первом этаже административного здания Мухиной 10 (ЧЕРДАК)Первая линия, вход со стороны улицы МухинойОтдельный вход, дополнительный второй вход...
    • 1/3 эт.
    85 000 Р
    Агент
    +7 (914) Показать номер
    Посмотреть контакты
    Помещение свободного назначения в Воронежская область, Нововоронеж ... - Фото 1
    Помещение свободного назначения в Воронежская область, Нововоронеж ... - Фото 2
    Арт.Сдам в долгосрочную аренду помещение на красной линии. По преимуществам помещение писать много, лучше звоните и приезжайте на просмотр. По просмотру звоните за один день, договоримся.
    • 1/6 эт.
    83 000 Р
    Агент
    +7 (919) Показать номер
    Посмотреть контакты
    Помещение свободного назначения в Калининградская область, Гурьевск ... - Фото 1
    Помещение свободного назначения в Калининградская область, Гурьевск ... - Фото 2
    Сдается в аренду нежилое помещение 153 кв.м в новом жилом комплексе в г.Гурьевске. Помещение расположено на 1 этаже 9 эт жилого дома.Высота потолков - 3,5 м. Панорамные окна, стеклопакеты, 2 выхода на балконы, 2 санузла, автономное отопление, пожарная...
    • 1/9 эт.
    85 000 Р
    Агент
    +7 (911) Показать номер
    Посмотреть контакты
    Аренда ПСН, м. Алексеевская, ул. Бочкова - Фото 1
    Аренда ПСН, м. Алексеевская, ул. Бочкова - Фото 2
    Аренда ПСН, м. Алексеевская, ул. Бочкова - Фото 3
    Аренда ПСН, м. Алексеевская, ул. Бочкова - Фото 4
    Аренда ПСН, м. Алексеевская, ул. Бочкова - Фото 5
    Аренда ПСН, м. Алексеевская, ул. Бочкова - Фото 6
    Аренда ПСН, м. Алексеевская, ул. Бочкова - Фото 7
    Аренда ПСН, м. Алексеевская, ул. Бочкова - Фото 8
    Аренда ПСН, м. Алексеевская, ул. Бочкова - Фото 9
    Аренда ПСН, м. Алексеевская, ул. Бочкова - Фото 10
    Аренда ПСН, м. Алексеевская, ул. Бочкова - Фото 11
    Аренда ПСН, м. Алексеевская, ул. Бочкова - Фото 12
    общая площадь 388м², полезная площадь 388м²

    Лот 152670. Предлагается в аренду помещение свободного назначения за выездом арендатора расположенное в СВАО на первой линии домов в середине жилого массива. Станция метро Алексеевская расположена в 3 мин.пешком. Большой рекламный потенциал, хорошая...
    • 388 м²
    • 1-й эт.
    2 700 000 Р /в месяц
    Агентство
    S5Development
    +7 (903) Показать номер
    Посмотреть контакты
    Аренда ПСН, м. Китай-город, Солянка 2/6 - Фото 1
    Аренда ПСН, м. Китай-город, Солянка 2/6 - Фото 2
    Аренда ПСН, м. Китай-город, Солянка 2/6 - Фото 3
    Аренда ПСН, м. Китай-город, Солянка 2/6 - Фото 4
    Аренда ПСН, м. Китай-город, Солянка 2/6 - Фото 5
    Аренда ПСН, м. Китай-город, Солянка 2/6 - Фото 6
    Аренда ПСН, м. Китай-город, Солянка 2/6 - Фото 7
    Аренда ПСН, м. Китай-город, Солянка 2/6 - Фото 8
    общая площадь 209м², полезная площадь 209м²

    Лот 22765. Сдается помещение свободного назначения в подвале по адресу: Солянка 2/6с1 в ЦАО г.Москвы расположенное на первой линии. В шаговой доступности метро Китай-город, Славянская площадь, Лубянский проезд. Рядом с помещением расположены кафе,...
    • 209 м²
    • -1-й эт.
    1 450 000 Р /в месяц
    Агентство
    S5Development
    +7 (903) Показать номер
    Посмотреть контакты

    Не нашли подходящего объявления?

    Оставьте заявку, и наши риэлторы подберут псн в районе Киренска

    (0)