2 700 000 Р 33 180 $ или 28 800

Информация о квартире

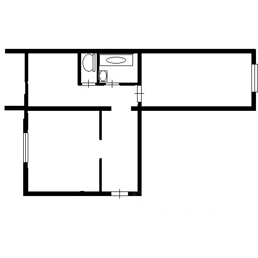
48 м2
Площадь
32 м2
Жилая
5 м2
Кухня
2
Комнаты
4
Этаж
5
Этажность
Развернуть
Агент
+7 (914) 871-22-86
Начать чат с агентом

2-к кв. Иркутская область, Усть-Илимск ул. Чайковского, 5 (48.1 м)

Квартира расположена в центре левого берега, что обеспечивает удобный доступ ко всем ключевым объектам инфраструктуры. Окна ПВХ гарантируют отличную шумо- и теплоизоляцию. Потолки натяжные создают эстетичный и современный вид. Современные межкомнатные двери гармонично вписываются в общий дизайн интерьера. Ванна и туалет отделаны кафелем, сантехника полностью заменена, что исключает необходимость дополнительных вложений.В зале установлен кондиционер, обеспечивающий комфортную температуру в любое время года. Кухня, выполненная на заказ, оснащена встроенной техникой: духовка, вытяжка и комфорка 2023 года выпуска. Это современное и функциональное решение для приготовления пищи.Большая гардеробная, также встроенная под заказ в 2023 году, предлагает достаточно места для хранения вещей. Расположение квартиры выгодно выделяется близостью к ДК, школам, детским садам и ЦРБ. Окна выходят на обе стороны дома, обеспечивая естественное освещение в течение всего дня.Рассматривается возможность обмена на 3-х или 4-х комнатную квартиру новой планировки с нашей доплатой. При обмене цена будет выше.

Читать полностью

    Для того, чтобы купить двухкомнатную квартиру по адресу: Усть-Илимск, ул. Чайковского, 5, позвоните по телефону +7 (914) 871-22-86. Торопитесь! Объявление №30091231653 о продаже двухкомнатной квартиры опубликовано Сегодня.

    Позвонить Написать
    2 700 000 Р33 180 $ или 28 800
    Агент
    +7 (914) 871-22-86
    Начать чат с агентом
    Похожие предложения
    2-к кв. Иркутская область, Усть-Илимск просп. Дружбы Народов, 20 (43.7 ... - Фото 1
    2-к кв. Иркутская область, Усть-Илимск просп. Дружбы Народов, 20 (43.7 ... - Фото 2
    2-комнатная квартира, общая площадь 43м², жилая 32м², кухня 5м²

    Продается двухкомнатная квартира в городе Усть-Илимске по проспекту Дружбы народов 20. В квартире косметический ремонт:окна ПВХ ,балкон металлоконструкция ,в комнатах и коридоре натяжной потолок ,на полу линолеум .Комнаты раздельные ,сделана гардеробная...
    • 43 м²
    • 2-ком
    • 5/5 эт.
    2 800 000 Р
    Агент
    +7 (983) Показать номер
    Посмотреть контакты
    2-к кв. Иркутская область, Усть-Илимск ул. Энтузиастов, 25 (53.4 м) - Фото 1
    2-к кв. Иркутская область, Усть-Илимск ул. Энтузиастов, 25 (53.4 м) - Фото 2
    2-комнатная квартира, общая площадь 53м², жилая 30м², кухня 9м²

    Продается двухкомнатная квартира по адресу улица Энтузиастов д. 25. Квартира новой планировки. 2 окна пвх. Ложия пвх. Остальное без замен.Удобное расположение дома. Рядом магазины, остановка, школа, детские сад.Подходит под любой вид расчета. Торг
    • 53 м²
    • 2-ком
    • 2/9 эт.
    2 600 000 Р
    Агент
    +7 (914) Показать номер
    Посмотреть контакты
    3-к кв. Иркутская область, Усть-Илимск просп. Дружбы Народов, 40 (60.5 ... - Фото 1
    3-к кв. Иркутская область, Усть-Илимск просп. Дружбы Народов, 40 (60.5 ... - Фото 2
    3-комнатная квартира, общая площадь 60м², жилая 46м², кухня 9м²

    Продам 3-х комнатную квартиру в 7-м микрорайоне, балкон+лоджия, все окна пвх, полы - линолиум+ламинат, торг или обмен на 1-комнатную с доплатой.
    • 60 м²
    • 3-ком
    • 5/5 эт.
    • панельный
    2 650 000 Р
    Агент
    +7 (914) Показать номер
    Посмотреть контакты
    2-комнатная квартира, общая площадь 47м², кухня 5м²

    Продам 2 комн. квартиру, с мебелью и техникой.
    • 47 м²
    • 2-ком
    • 1/5 эт.
    • панельный
    2 800 000 Р
    Агент
    +7 (914) Показать номер
    Посмотреть контакты
    2-к кв. Иркутская область, Усть-Илимск Белградская ул., 12 (52.2 м) - Фото 1
    2-к кв. Иркутская область, Усть-Илимск Белградская ул., 12 (52.2 м) - Фото 2
    2-комнатная квартира, общая площадь 52м², жилая 32м², кухня 9м²

    Продается ухоженная 2х комнатная квартира. Квартира теплая, светлая,один собственник. Любая форма расчета
    • 52 м²
    • 2-ком
    • 4/9 эт.
    • панельный
    2 700 000 Р
    Агент
    +7 (914) Показать номер
    Посмотреть контакты

    Не нашли подходящего объявления?

    Оставьте заявку, и наши риэлторы подберут квартиру в районе Усть-Илимска

    (0)