2 300 000 Р 30 370 $ или 25 420

Информация о квартире

38 м2
Площадь
27 м2
Жилая
6 м2
Кухня
1
Комната
3
Этаж
5
Этажность

Дополнительная информация

Тип дома
панельный
Развернуть
Агент
+7 (914) 911-07-85
Начать чат с агентом

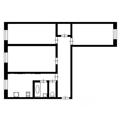
1-к кв. Иркутская область, Усть-Илимск ул. Наймушина, 18 (38.0 м)

Продается квартира одноуомнатная (Наймушина 18). ОДнокомнатная квартира,есть все для проживания. Кухня большая (2 окна). Возможен торг

Читать полностью

    Для того, чтобы купить однокомнатную квартиру по адресу: Усть-Илимск, ул. Наймушина, 18, позвоните по телефону +7 (914) 911-07-85. Торопитесь! Объявление №30093286377 о продаже однокомнатной квартиры опубликовано Вчера.

    Позвонить Написать
    2 300 000 Р30 370 $ или 25 420
    Агент
    +7 (914) 911-07-85
    Начать чат с агентом
    Похожие предложения
    3-к кв. Иркутская область, Усть-Илимск ул. Наймушина, 24 (60.0 м) - Фото 1
    3-комнатная квартира, общая площадь 60м², жилая 45м², кухня 5м²

    Продам 3-х комнатную квартиру. Квартира светлая и тёплая. Окна с трех сторон дома. Все комнаты раздельные. В больших комнатах по два окна. При желании можем оставить мебель, технику. Рядом с домом находятся детский сад, школа. Остановка в 5 минутах ходьбы....
    • 60 м²
    • 3-ком
    • 1/5 эт.
    • панельный
    2 350 000 Р
    Агент
    +7 (914) Показать номер
    Посмотреть контакты
    2-к кв. Иркутская область, Усть-Илимск ул. Наймушина, 6 (48.6 м) - Фото 1
    2-к кв. Иркутская область, Усть-Илимск ул. Наймушина, 6 (48.6 м) - Фото 2
    2-комнатная квартира, общая площадь 48м², жилая 37м², кухня 6м²

    Продам 2х квартиру. Комнаты раздельные, балкон застеклен, окна ПВХ кроме балконной. Рядом с домом находится остановка, гимназия, школа 14, детский сад 5, аквапарк, сбербанк, супермаркеты Дружба, Ермак, пункт вайлдберриз. Соседи не беспокоят, квартира...
    • 48 м²
    • 2-ком
    • 3/5 эт.
    • панельный
    2 300 000 Р
    Агент
    +7 (914) Показать номер
    Посмотреть контакты
    2-к кв. Иркутская область, Усть-Илимск ул. Наймушина, 5 (46.0 м) - Фото 1
    2-к кв. Иркутская область, Усть-Илимск ул. Наймушина, 5 (46.0 м) - Фото 2
    2-комнатная квартира, общая площадь 46м², кухня 5м²

    Продам 2 комн квартиру на левом берегу. Торг уместен.
    • 46 м²
    • 2-ком
    • 3/5 эт.
    • панельный
    2 200 000 Р
    Агент
    +7 (914) Показать номер
    Посмотреть контакты
    1-к кв. Иркутская область, Усть-Илимск Белградская ул., 3 (35.8 м) - Фото 1
    1-комнатная квартира, общая площадь 35м², жилая 20м², кухня 9м²

    предлагаем к продаже квартиру, расположенную в 9м микрорайоне, свежий ремонт, теплая, чистая, без обременений, 1 собственник, небольшой торг.
    • 35 м²
    • 1-ком
    • 5/5 эт.
    • панельный
    2 300 000 Р
    Агент
    +7 (914) Показать номер
    Посмотреть контакты
    3-к кв. Иркутская область, Усть-Илимск ул. Романтиков, 11 (48.0 м) - Фото 1
    3-комнатная квартира, общая площадь 48м², жилая 36м², кухня 6м²

    Продается 3 комн. квартира на левом берегу. В квартире сделан ремонт, окна все ПВХ, натяжные потолки, заменена входная дверь. В шаговой доступности: магазины, садики,школа, автобусная остановка,больница. Отличный вариант для тех, кто хочет заехать в квартиру...
    • 48 м²
    • 3-ком
    • 3/5 эт.
    • панельный
    2 400 000 Р
    Агент
    +7 (914) Показать номер
    Посмотреть контакты

    Не нашли подходящего объявления?

    Оставьте заявку, и наши риэлторы подберут квартиру в районе Усть-Илимска

    (0)