Реализация объекта недвижимости приостановлена

Информация о квартире

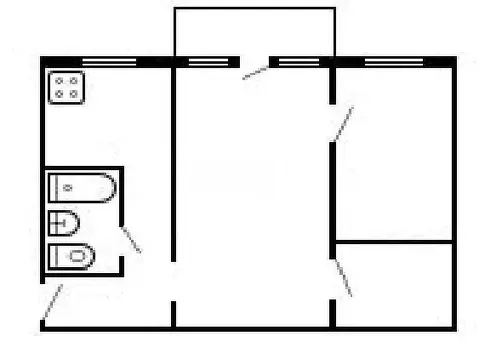
68.0 м2
Площадь
9.0 м2
Кухня
3
Комнаты
2
Этаж
5
Этажность

Дополнительная информация

Тип дома
панельный
Развернуть

3-к кв. Иркутская область, Ангарск 6А мкр, 43 (68.7 м)

Предлагаем к продаже замечательную 3-комнатную квартиру с продуманной планировкой, расположенную на удобном втором этаже пятиэтажного дома. Дом находится в 6а микрорайоне, дом 43.Квартира частично отремонтирована: установлены новые стеклопакеты и радиаторы, что обеспечит тепло и комфорт в любое время года. Окна выходят на три стороны, наполняя комнаты естественным светом и открывая приятные виды. К вашим услугам два балкона, а также раздельный санузел.Это идеальное предложение для большой и дружной семьи, ценящей уют и спокойствие спального района. Здесь всё в шаговой доступности: школа 15, детский сад, поликлиника Планета здоровья , магазин Мано , остановки общественного транспорта (включая междугородние маршруты), продуктовые магазины и множество других объектов инфраструктуры.Наша компания с 35-летним опытом на рынке недвижимости гарантирует безопасность каждой сделки. Мы являемся официальными партнерами ведущих банков и готовы помочь вам с оформлением ипотеки.

Читать полностью

    Реализация объекта недвижимости приостановлена

    Не нашли подходящего объявления?

    Оставьте заявку, и наши риэлторы подберут квартиру в районе Ангарска

    (0)