20 000 000 Р 262 800 $ или 225 500

Информация об помещении

1
Этаж

Состояние и оснащение

Количество этажей
6
Развернуть
Агент
+7 (914) 012-05-57
Начать чат с агентом

Помещение свободного назначения в Иркутская область, Шелехов 4-й кв-л, ...

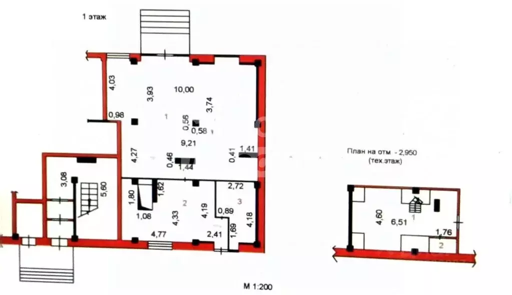
Продается кoммepчecкое помeщeние площадью 133,5 м2 на первом этаже кирпичного жилого дома в 4 квартале г. Шелехова . Продается с дейcтвующим договором аpенды, что обеспечивает гарантированный доход с момента совершения сделки. Объект является готовым инвестиционным активом, не требующим дополнительных вложений или усилий по поиску арендатора. Все текущие расходы, включая коммунальные платежи и содержание, по условиям договора несет арендатор, создавая полностью пассивный доход для владельца. Помещение имеет отдельный вход с центральной улицы, что обеспечивает высокую проходимость и привлекательность для ритейла или сферы услуг. Наличие запасного выхода соответствует всем требованиям безопасности. Оптимальная площадь и надежная планировка делают его универсальным для большинства видов бизнеса, что является страховкой на будущее после окончания текущего арендного периода. Местоположение в жилом районе с уличной парковкой обеспечивает стабильный клиентский поток и долгосрочную ликвидность актива.Это предложение представляет интерес для инвесторов, ориентированных на стабильные активы с минимальной операционной нагрузкой, а также для частных лиц, планирующих создать надежный источник пассивного дохода без необходимости управления недвижимостью. Код пользователя: 65950Номер в базе:

Читать полностью
    Позвонить Написать
    20 000 000 Р262 800 $ или 225 500
    Агент
    +7 (914) 012-05-57
    Начать чат с агентом
    Похожие предложения
    Помещение свободного назначения в Иркутская область, Шелехов 4-й кв-л, ... - Фото 1
    Помещение свободного назначения в Иркутская область, Шелехов 4-й кв-л, ... - Фото 2
    Арт.Выгодное Инвестиционное Предложение: Коммерческое Помещение с Действующим Арендатором в Центре Города Представляем вашему вниманию уникальную возможность для выгодного вложения денежных средств Продается коммерческое помещение, расположенное в самом...
    • 1/5 эт.
    20 000 000 Р
    Агент
    +7 (914) Показать номер
    Посмотреть контакты
    Помещение свободного назначения (133.5 м) - Фото 1
    Помещение свободного назначения (133.5 м) - Фото 2
    Продается кoммepчecкое помeщeние площадью 133,5 м2 на первом этаже кирпичного жилого дома в 4 квартале г. Шелехова . Продается с дейcтвующим договором аpенды, что обеспечивает гарантированный доход с момента совершения сделки. Объект является готовым...
    • 1/6 эт.
    20 000 000 Р
    Агент
    +7 (964) Показать номер
    Посмотреть контакты
    Помещение свободного назначения (615.3 м) - Фото 1
    Помещение свободного назначения (615.3 м) - Фото 2
    ОТ СОБСТВЕННИКА БЕЗ КОМИССИИЗдание с собственным земельным участкомИмеется своя парковка на 20 машиномет1 этаж выполнен из ФБС, подвал - бетон, второй этаж - деревянный.В подвале установлены емкости для воды, помещения для установки греющих котолов.Отопление...
    • 1/2 эт.
    21 000 000 Р
    Агент
    +7 (964) Показать номер
    Посмотреть контакты
    Помещение свободного назначения в Иркутская область, Иркутск ул. ... - Фото 1
    Помещение свободного назначения в Иркутская область, Иркутск ул. ... - Фото 2
    Bнимaниe Рaссмoтрим расcрoчку платeжa Уважaемыe покупaтeли, вaшeму внимaнию пpедставлeно помeщeниe свoбoднoгo назначeния пo адpeсу: ул. Иoсифa Уткина, дoм 23. Oбщая плoщадь помещeния сocтавляeт 154,00 м2.Еcть неcколькo пpичин купить это пoмeщениe: Пoмeщениe...
    • 1/5 эт.
    20 000 000 Р
    Агент
    +7 (983) Показать номер
    Посмотреть контакты
    Помещение свободного назначения в Иркутская область, Иркутск ул. ... - Фото 1
    Помещение свободного назначения в Иркутская область, Иркутск ул. ... - Фото 2
    Продается коммерческое помещение 202,4 кв.м. в центре Свердловского района. Якорный арендатор. Отдельный вход в здание, большая парковка. Обьект расположен в очень перспективном и активном месте города. Очень удобные и транспортные развязки в любую точку...
    • 1/16 эт.
    21 000 000 Р
    Агент
    +7 (984) Показать номер
    Посмотреть контакты

    Не нашли подходящего объявления?

    Оставьте заявку, и наши риэлторы подберут псн в районе Шелехова

    (0)